14/24
Paylaş
Resmi Orjinal Boyutunda Göster
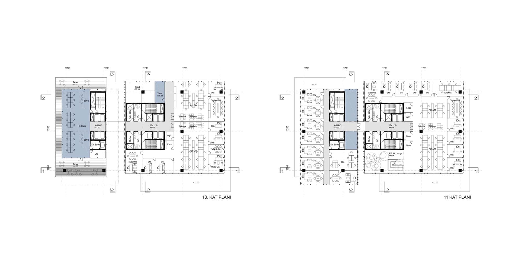
ODTÜ Teknokent MET Yerleşkesi İnovasyon Binası
Project Location: Ankara
Project Office: FREA, Tamirci Architects
Project Type: Offices
Proje Tipi Grubu: 1. Ödül
Tasarım Ekibi: Fatih Yavuz, Ömer Emre Şavural, Can Tamirci
Employer: Teknokent Yönetim A.Ş.
Project Start Date: 2014
Total Construction Area: 33.000 m2