20/21
Paylaş
Resmi Orjinal Boyutunda Göster
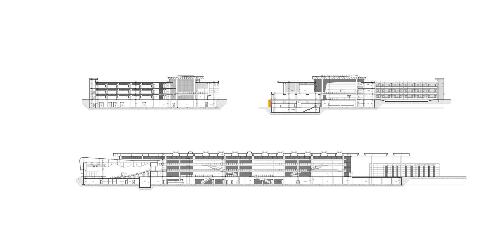
Zafer Koleji
Proje Yeri: Ankara
Proje Ofisi: CAG Mimarlık Atölyesi, FREA, SMAG Mimarlık
Proje Tipi: Lise / Ortaöğretim
Proje Tipi Grubu: Eğitim
Tasarım Ekibi: Celal Abdi Güzer, Lale Özgenel, Fatih Yavuz, Ömer Emre Şavural, Hasan Okan Çetin
İşveren: Zafer Koleji
Danışman: Ali Demir
Yardımcı: Onur Üstün, Öznur Yıldız, Nuran Özkam, Cenk Erkoçoğlu
Peyzaj Mimarlığı: Belemir Dalokay
Statik Projesi: Mehmet Kılıç
Mekanik Projesi: Mehmet Şahin
Elektrik Projesi: İsmail Topalak
Fotoğraf: Cemal Emden
İnşaat Bitiş Yılı: 2014
Toplam İnşaat Alanı: 35.000 m²