20/29
Paylaş
Resmi Orjinal Boyutunda Göster
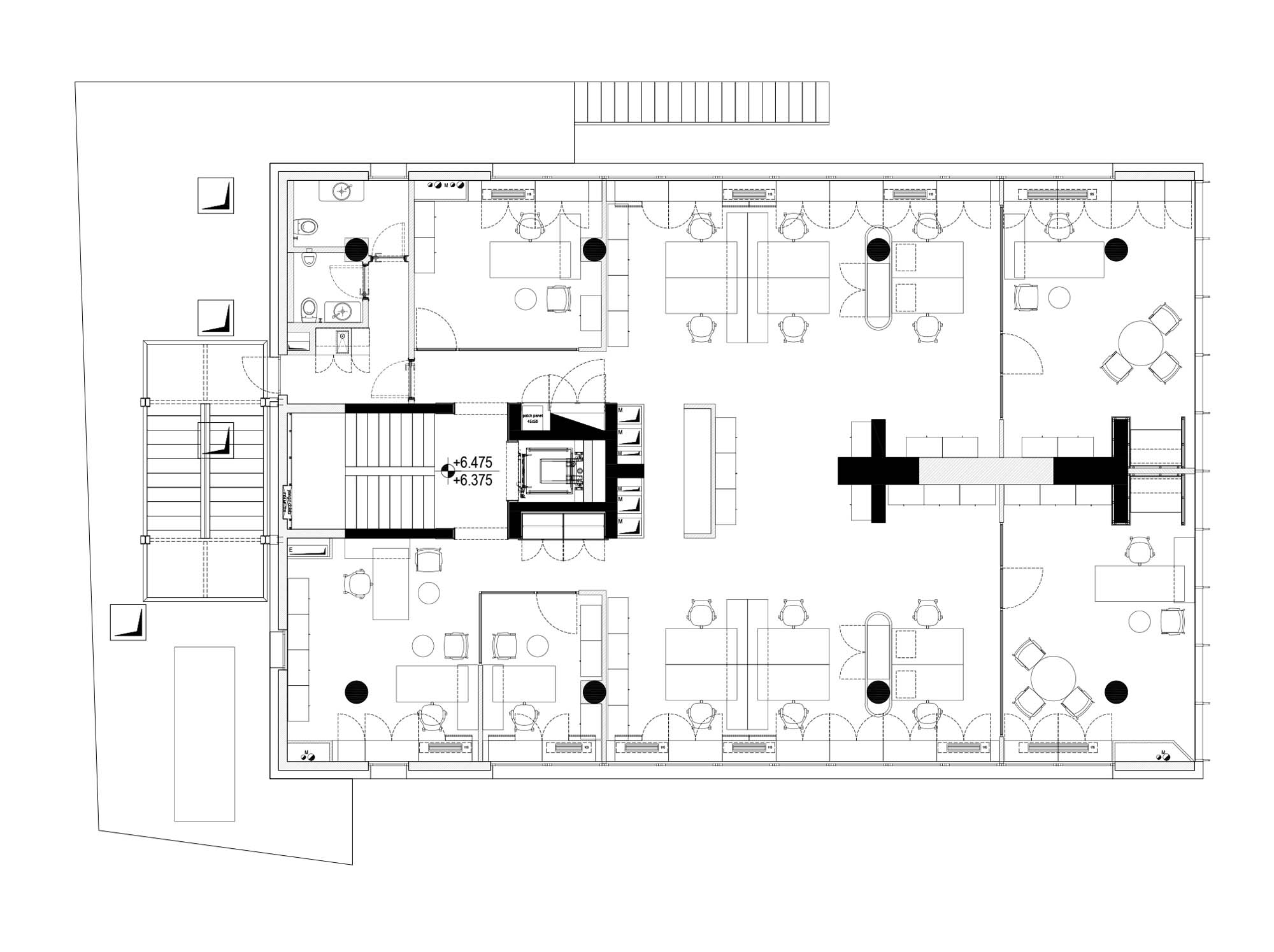
Cantaş Ofis
Proje Yeri: İstanbul, Şişli
Proje Ofisi: Erginoğlu & Çalışlar Mimarlık
Proje Tipi: Ofis
Proje Tipi Grubu: Ticari
Tasarım Ekibi: Kerem Erginoğlu, Hasan Çalışlar, Onat Över
İşveren: Cantaş İç ve Dış Ticaret Soğutma Sistemleri Sanayi A.Ş.
Proje Yöneticisi: Erginoğlu & Çalışlar Mimarlık
Statik Projesi: Modern Mühendislik
Mekanik Projesi: DSM Mühendislik
Elektrik Projesi: Enkom Mühendislik
Proje Başlangıç Yılı: 2014
Proje Bitiş Yılı: 2014
İnşaat Başlangıç Yılı: 2014
İnşaat Bitiş Yılı: 2014
Arsa Alanı: 621,85 m²
Toplam İnşaat Alanı: 2,523 m²