11/13
Paylaş
Resmi Orjinal Boyutunda Göster
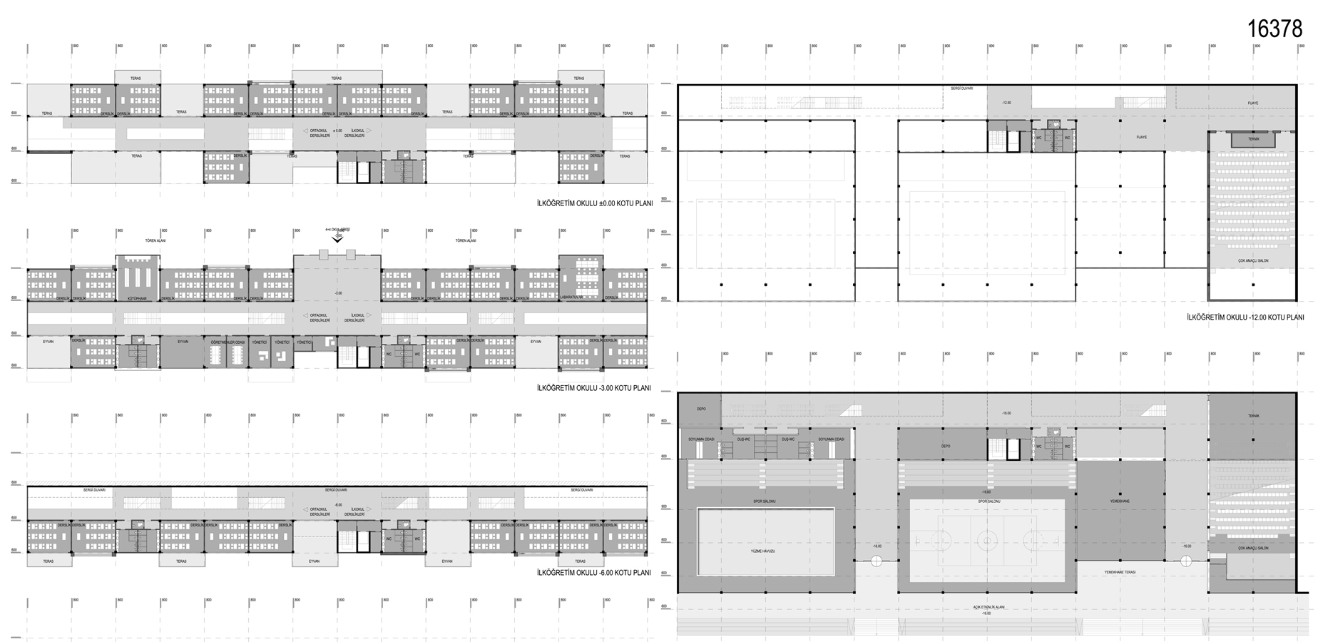
7 İklim 7 Bölge Ulusal Mimari Proje Yarışması İç Anadolu Bölgesi - 1. Ödül
Proje Ofisi: OfficePAN Mimarlık
Proje Tipi: Konut Sitesi / Grubu
Tasarım Ekibi: Zeynep Canan Aksu, Cihan Sevindik, Doğan Türkkan
Yardımcı: Sinan Tuncer, Oğuzhan Aydın