15/16
Paylaş
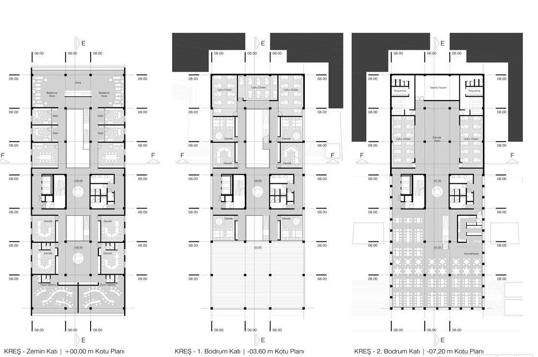
Resmi Orjinal Boyutunda Göster
7 İklim 7 Bölge Ulusal Mimari Proje Yarışması Karadeniz Bölgesi
Proje Ofisi: OfficePAN Mimarlık
Proje Tipi: Konut Sitesi / Grubu
Proje Tipi Grubu: Katılımcı
Tasarım Ekibi: Doğan Türkkan, Cihan Sevindik, Zeynep Canan Aksu, Sinan Tuncer, Oğuzhan Aydın