20/24
Paylaş
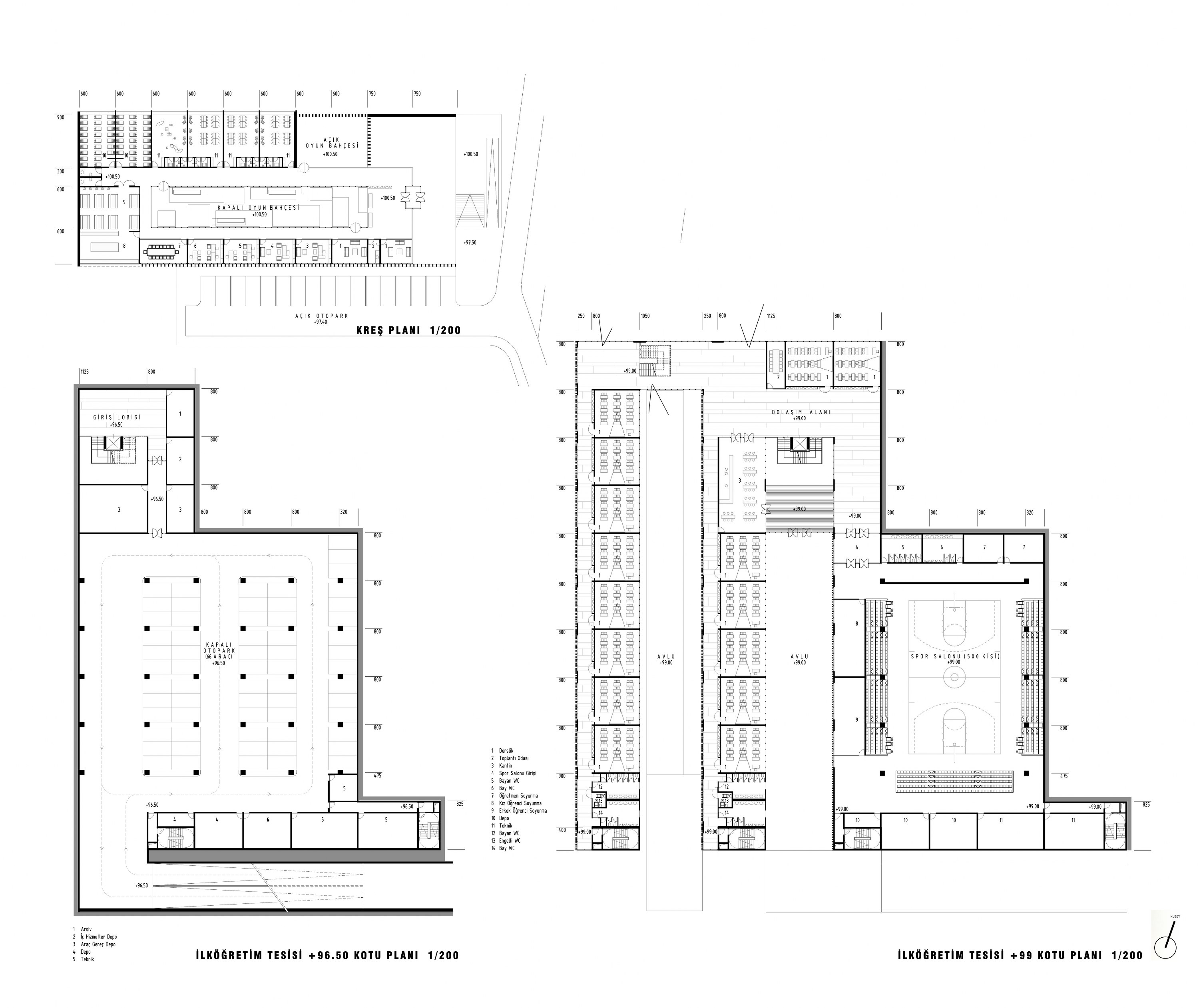
Resmi Orjinal Boyutunda Göster
Başlığı girin
Proje Ofisi: SN Mimarlık
Proje Tipi: Konut Sitesi / Grubu
Proje Tipi Grubu: 3. Mansiyon
Tasarım Ekibi: Süleyman Akkaş, Nihal Şenkaya Akkaş