9/10
Paylaş
Resmi Orjinal Boyutunda Göster
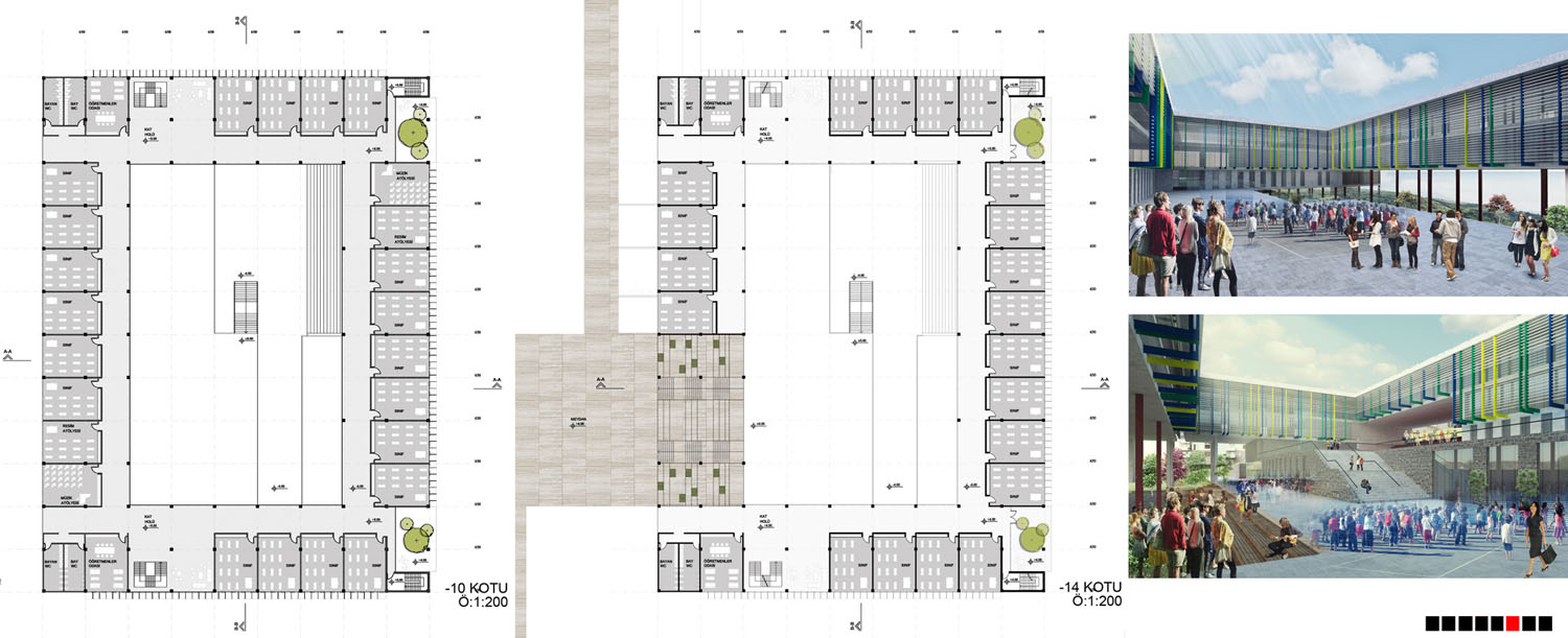
2. Mansiyon
Proje Ofisi: Neon Mimarlık
Proje Tipi: Konut Sitesi / Grubu
Proje Tipi Grubu: 2. Mansiyon
Tasarım Ekibi: Ceyda Gökoğlu İğdeli, İlker İğdeli, Necdet Beker
Yardımcı: Meltem Yazal, Çağla Ozardalı, Bihter Öztürk, Hamdi Kalyoncu, Emre İleri, Birsel Saygılı, Barlas Ertürk, Irmak Kalkan, Berivan Kefeli, Fulya Altan, Aykut İğdeli