17/23
Paylaş
Resmi Orjinal Boyutunda Göster
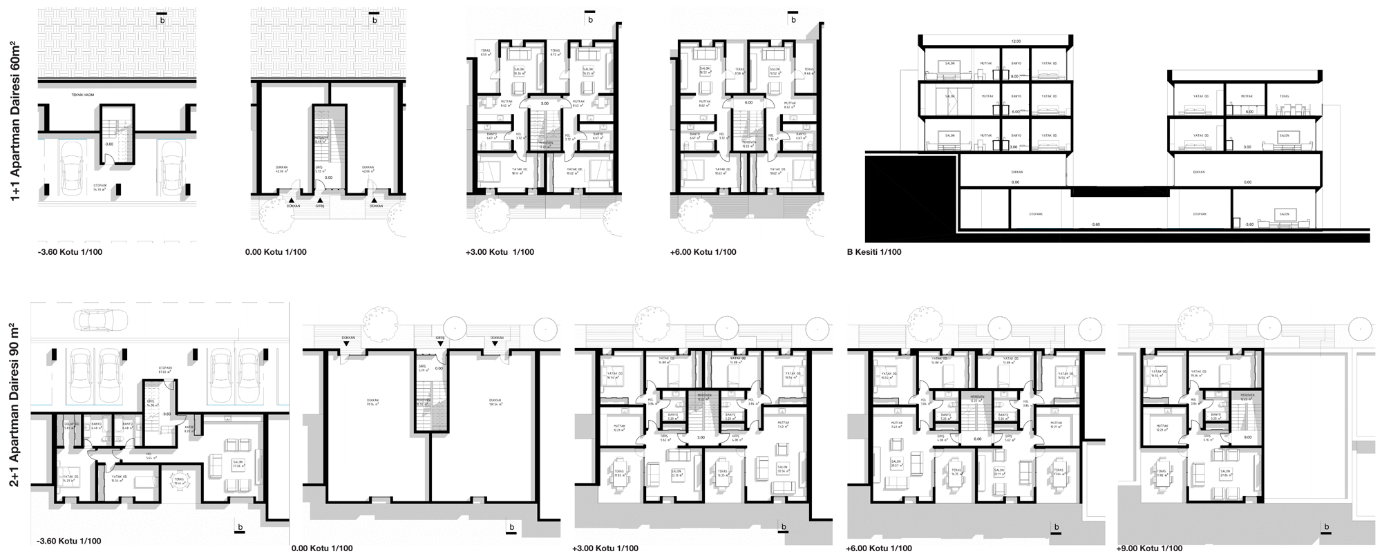
3. Ödül, 7 İklim 7 Bölge Ulusal Mimari Proje Yarışması (Ege Bölgesi)
Proje Tipi: Konut Sitesi / Grubu
Proje Tipi Grubu: 3. Ödül
Tasarım Ekibi: Ata Kurt, İrfan Ertiş, Necmettin Selimoğlu
Yardımcı: Yunus Özdemir, Ceyda Cihangir, Sena Keleş, Gökçen Erkılıç