17/17
Paylaş
Resmi Orjinal Boyutunda Göster
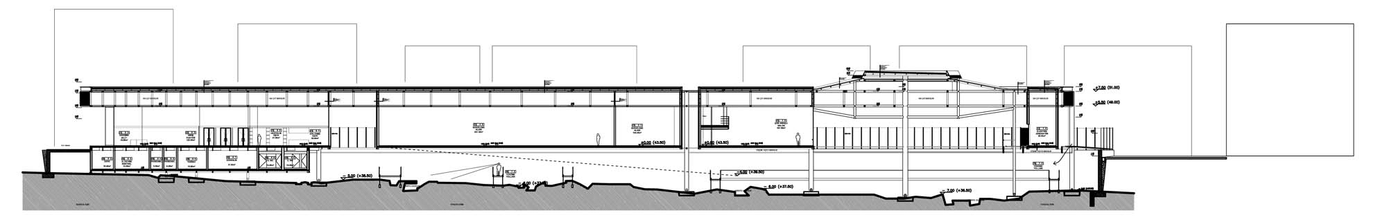
Antalya Nekropol Alanı Modern Sanatlar Müzesi
Proje Yeri: Muratpaşa, Antalya
Proje Ofisi: Erkal Mimarlık
Proje Tipi: Müze
Proje Tipi Grubu: Kültür
Tasarım Ekibi: Emre Erkal, Ozan Erkal
İşveren: Antalya Büyükşehir Belediyesi
Yardımcı: Demet Yüce
Proje Başlangıç Yılı: 2013
Proje Bitiş Yılı: 2014
İnşaat Başlangıç Yılı: 2015
Arsa Alanı: 7000 m2
Toplam İnşaat Alanı: 2500 m²