8/8
Paylaş
Resmi Orjinal Boyutunda Göster
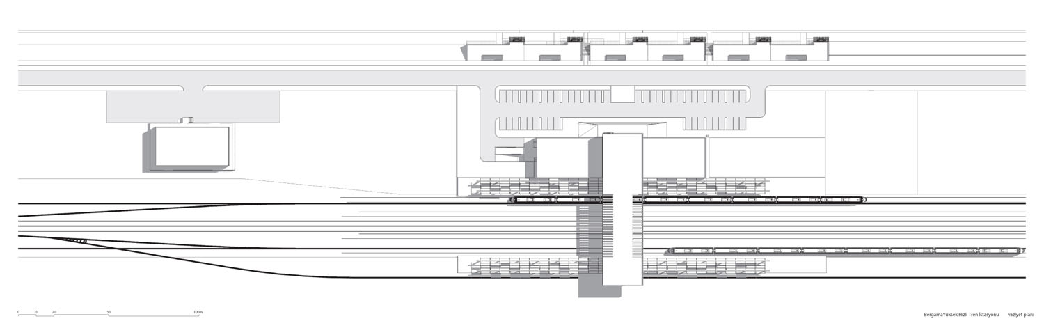
TCDD Bergama Yüksek Hızlı Tren İstasyonu
Proje Yeri: Bergama, İzmir
Proje Ofisi: FREA, SMAG Mimarlık
Proje Tipi: Demiryolu Yapıları
Tasarım Ekibi: Fatih Yavuz, Ömer Emre Şavural, Hasan Okan Çetin
Yardımcı: Cenk Erkoçoğlu, Öznur Yıldız
Peyzaj Mimarlığı: Propey
Statik Projesi: Selim İtez
Mekanik Projesi: GMD Mühendislik
Elektrik Projesi: GMD Mühendislik
Yangın Güvenlik Danışmanı: GMD Mühendislik
Proje Başlangıç Yılı: 2010
Proje Bitiş Yılı: 2011