12/26
Paylaş
Resmi Orjinal Boyutunda Göster
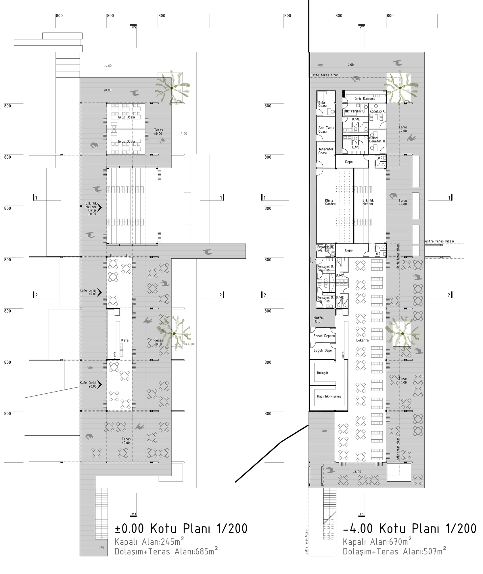
3. Ödül, Anamur Atatepe Sosyal Merkezi ve Çevresi Ulusal Mimari Proje Yarışması
Proje Yeri: Anamur
Proje Ofisi: FREA, SCRA Mimarlık
Proje Tipi: Sosyal Tesis
Proje Tipi Grubu: 3. Ödül
Tasarım Ekibi: Ömer Emre Şavural, Ramazan Avcı, Fatih Yavuz, Seden Cinasal Avcı
Danışman: Elvan Ender