8/16
Paylaş
Resmi Orjinal Boyutunda Göster
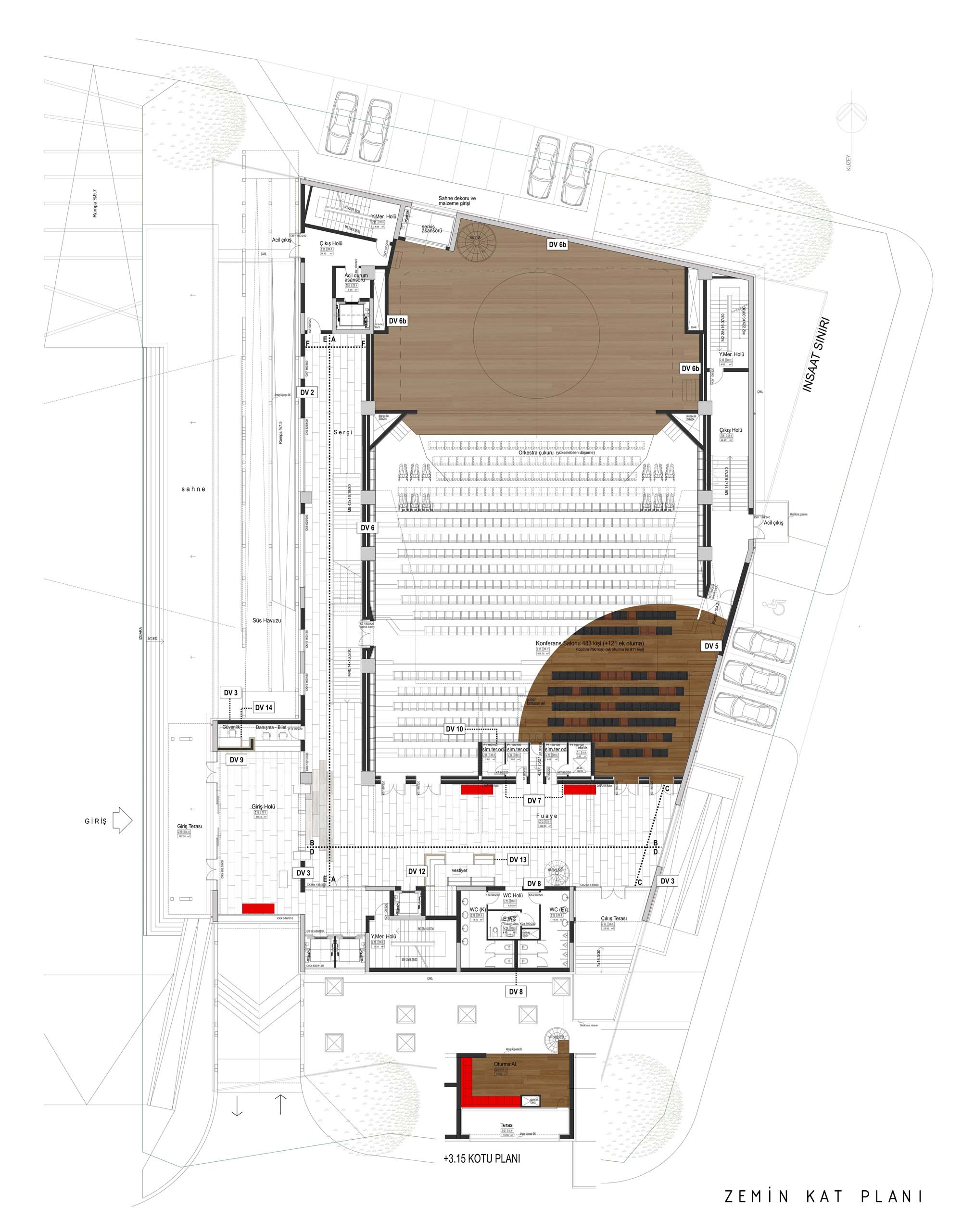
Leyla Gencer Opera ve Sanat Merkezi
Proje Yeri: Bakırköy, İstanbul
Proje Ofisi: Cemal Mutlu Mimarlık
Proje Tipi: Kültür Merkezi
Proje Tipi Grubu: Kültür
Tasarım Ekibi: Cemal Mutlu, Türkiz Özbursalı, Ferhat Sürek, Ecem Kocaarslan, Ali Derya Mutlu
İşveren: Bakırköy Belediyesi
Ana Yüklenici: Muzaffer Oflaz
Aydınlatma Projesi: Elekon Aydınlatma
Statik Projesi: C Yapı
Mekanik Projesi: Aks Proje Yapı Denetim Grubu
Elektrik Projesi: Sanayi Mühendislik
Tesisat Projesi: Aks Proje Yapı Denetim Grubu
Akustik Projesi: STD Akustik
Proje Başlangıç Yılı: 2011
Proje Bitiş Yılı: 2012
İnşaat Başlangıç Yılı: 2012
İnşaat Bitiş Yılı: 2013
Arsa Alanı: 3283.50 m2