19/19
Paylaş
Resmi Orjinal Boyutunda Göster
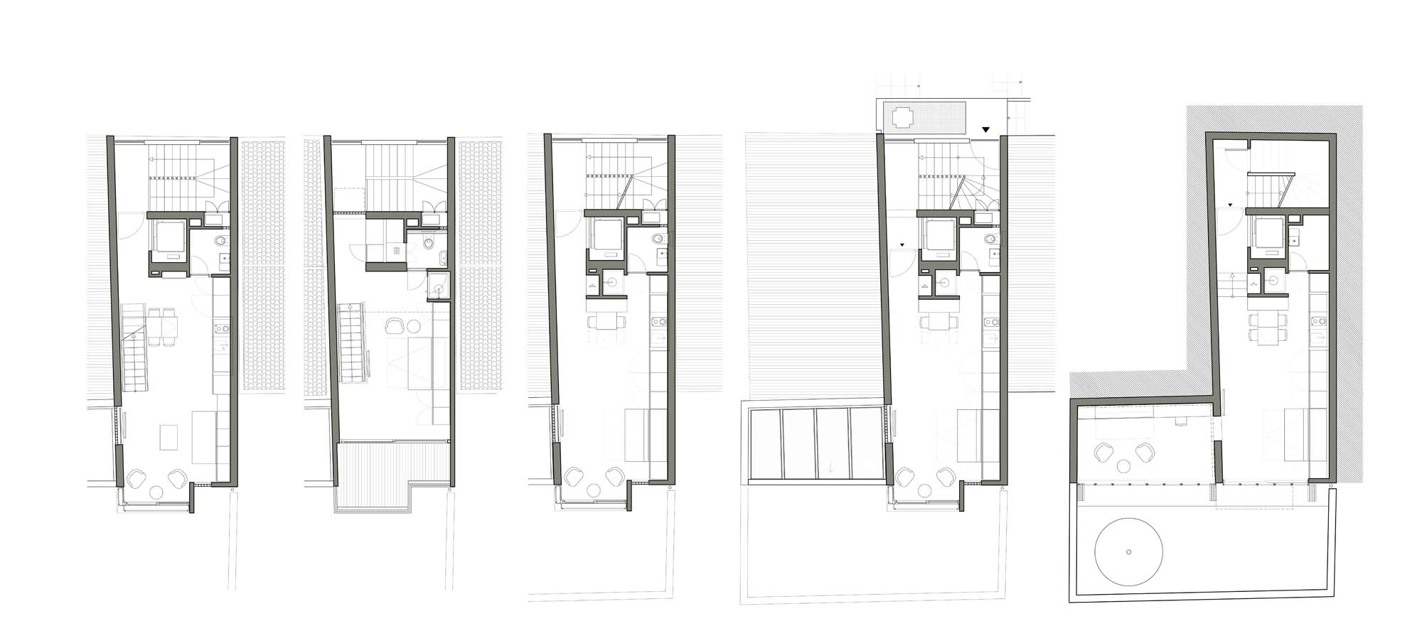
Microloft Bulut
Proje Yeri: Beyoğlu, İstanbul
Proje Ofisi: Çinici Mimarlık
Proje Tipi: Apartman
Proje Tipi Grubu: Konut
Tasarım Ekibi: Can Çinici
İşveren: Urbanist Yatırım
Yardımcı: Selin Sürücü
Statik Projesi: Galata İnşaat
Mekanik Projesi: Galata İnşaat
Elektrik Projesi: Galata İnşaat
Şantiye Yöneticisi: Melih Esin
Proje Başlangıç Yılı: 2012
Proje Bitiş Yılı: 2012
İnşaat Başlangıç Yılı: 2013
İnşaat Bitiş Yılı: 2014
Toplam İnşaat Alanı: 260 m2