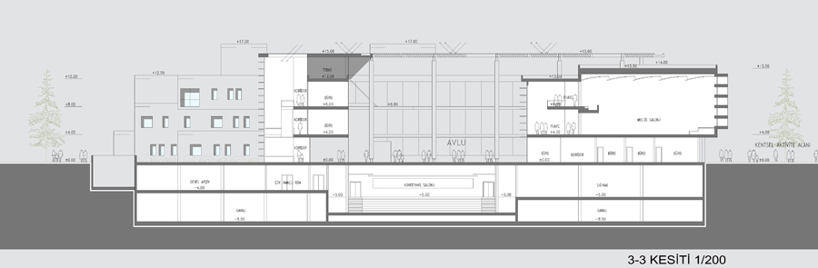
1 / 200 Ölçekli 3-3 Kesiti
20/26
Paylaş
Resmi Orjinal Boyutunda Göster
Hatay İl Genel Meclisi - İl Özel İdare Hizmet Binası Ulusal Mimari Proje Yarışması, 2. Ödül
Project Location: Hatay
Project Office: Uz Mimarlık Atölyesi
Project Type: Public Administration Building
Proje Tipi Grubu: 2. Ödül
Tasarım Ekibi: Mehmet Soylu, Mete Öz, Övünç Tarakçıoğlu
Consultant: Levent Aksaray, Ayhan Razgat, Özgür Ulupınar
Yardımcı: Şentürk Topçuoğlu, Abdulkadir Yılmaz, Yasin Bulut, Ali Tekin, Ömer Akyüz, Denizhan Ölmez
Model: Mehmet Sel, Hüseyin Küçük