7/8
Paylaş
Resmi Orjinal Boyutunda Göster
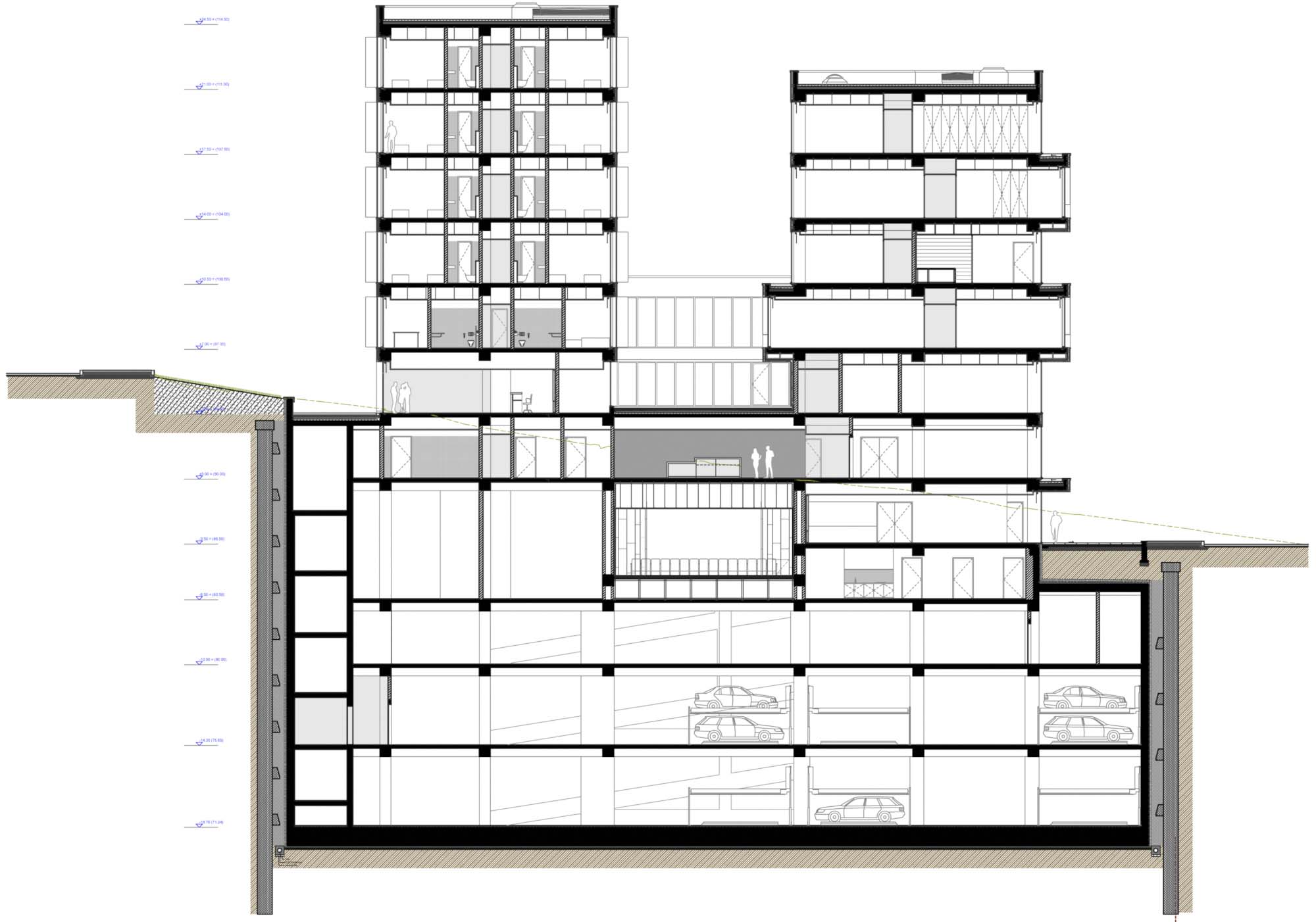
İSMEK Dikilitaş Binası
Project Location: Beşiktaş, İstanbul
Project Office: UrbAr Kentleşme ve Mimarlık
Project Type: Other Education Buildings, Dormitory / Guesthouse, Exhibition Hall / Gallery
Proje Tipi Grubu: Kamu
Tasarım Ekibi: Ali Kural
Employer: İstanbul Büyükşehir Belediyesi
Yardımcı: Sezin Taner, Susanne Boss, Seda Yıldız, Seda Kaplan
Structural Project: Konkan Mühendislik
Mechanical Project: Promek Mühendislik
Electrical Project: Özer Mühendislik
Project Start Date: 2013
Project End Date: 2014
Construction Start Date: 2015
Building Plot Area: 2,262 m²
Total Construction Area: 11,613 m²