15/22
Paylaş
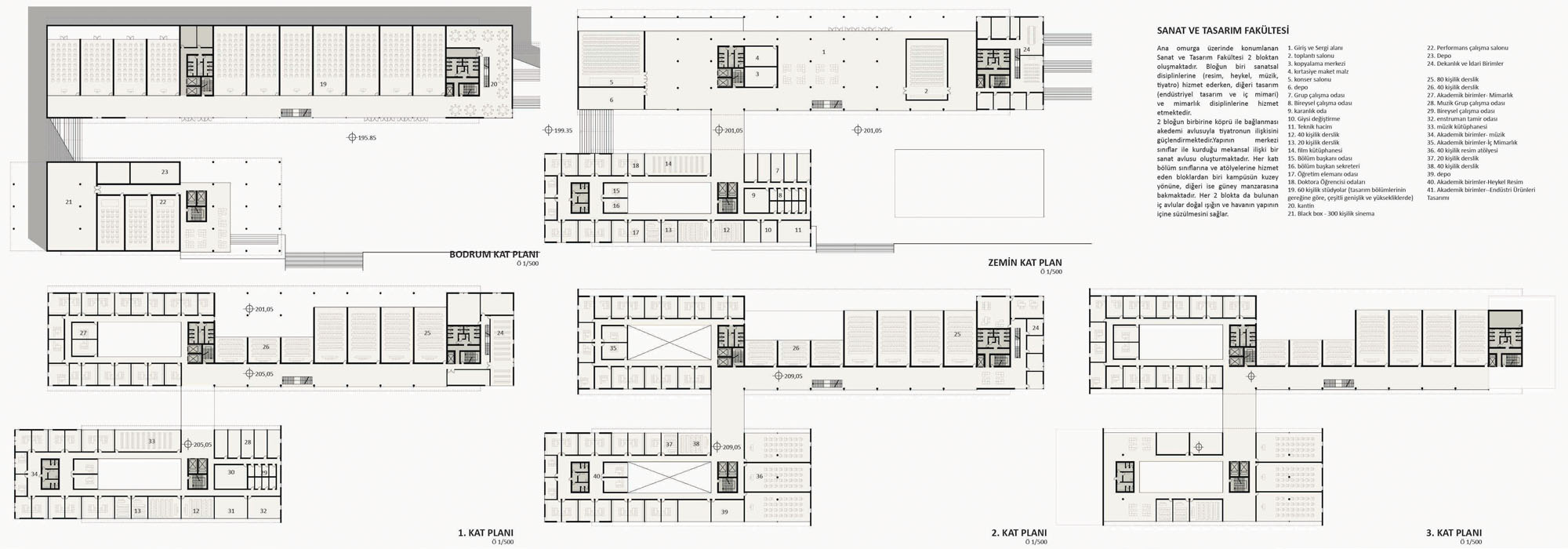
Resmi Orjinal Boyutunda Göster
1. Ödül
Proje Yeri: Düzce
Proje Tipi: Üniversite Kampüsü
Proje Tipi Grubu: 1. Ödül
Tasarım Ekibi: Doğu Kaptan, Sema Uğurlu, Seda Kurt Şengün, Oya Tabanoğlu, Erkan Göray, Ahmet Turan Köksal
Danışman: Hüseyin Kaptan, Marco Lombardini, Murat Er
Yardımcı: Süheyda Aylin İnce, Fatma Gençdoğuş, Yonca Temizkan, Ufuk İpek Çevik, Gabriella Colacicco, Anne-Lise Roussat-Noyerie, Enza di Pinto, Francesco Stefanini, Ediz Akyalçın