23/23
Paylaş
Resmi Orjinal Boyutunda Göster
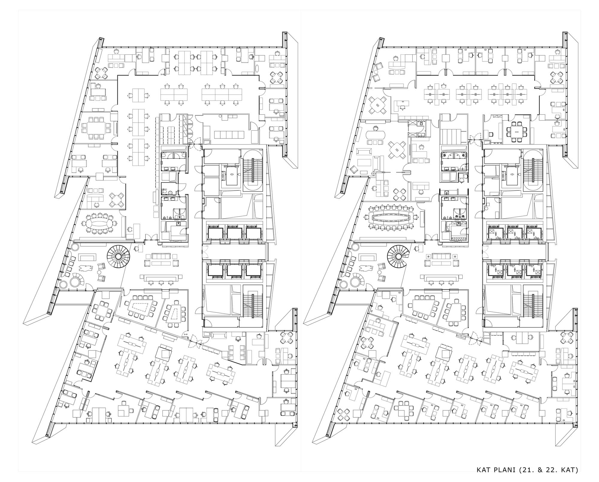
Genel Energy Ofisi
Proje Yeri: Ankara, Yenimahalle
Proje Ofisi: DererOmay Design & Construction
Proje Tipi: Ofis
Proje Tipi Grubu: Ticari
Tasarım Ekibi: Batu Derer, Emre Omay
İşveren: Genel Energy
Ana Yüklenici: DererOmay Design & Construction
Aydınlatma Projesi: DererOmay Design & Construction
Proje Başlangıç Yılı: 2013
Proje Bitiş Yılı: 2013
İnşaat Başlangıç Yılı: 2013
İnşaat Bitiş Yılı: 2014
Toplam İnşaat Alanı: 3,350 m²