23/29
Paylaş
Resmi Orjinal Boyutunda Göster
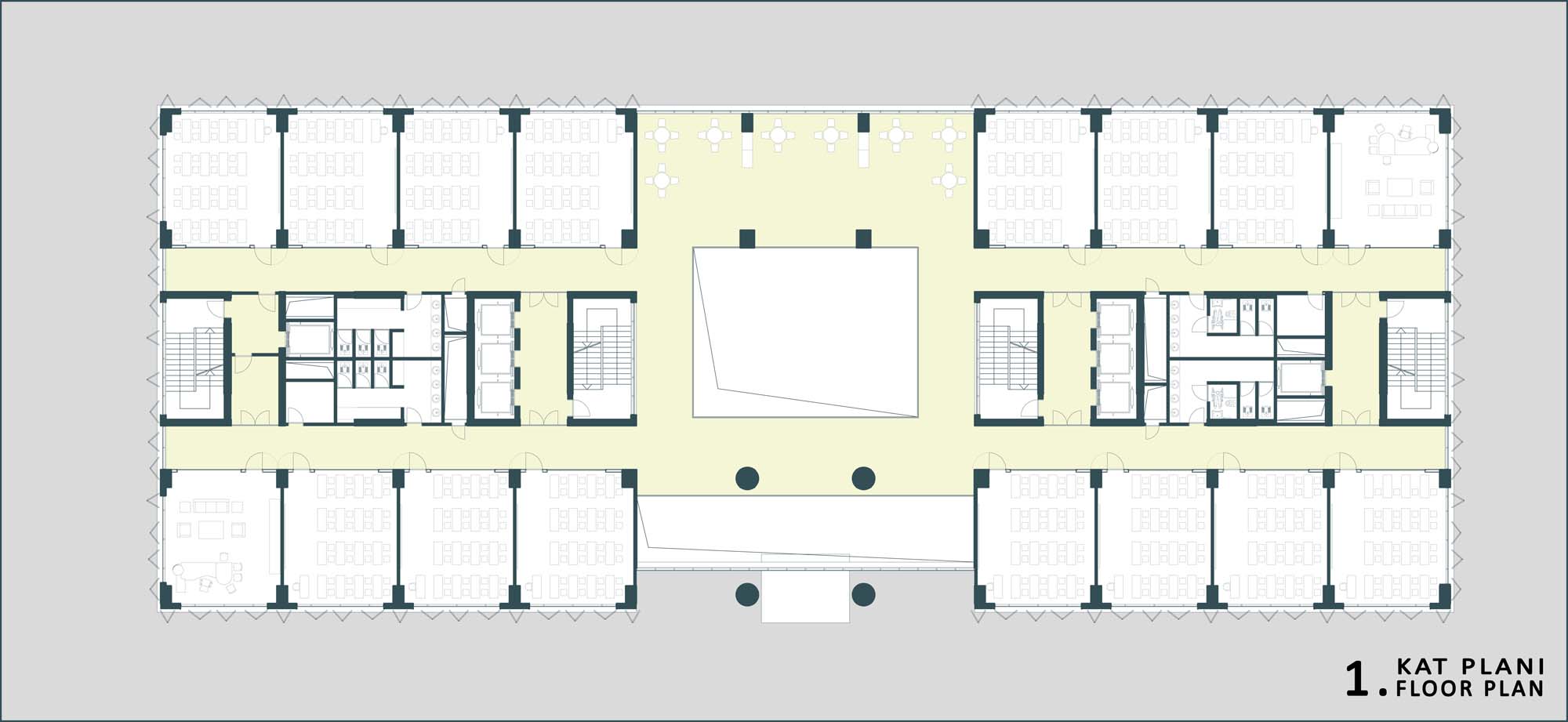
İstanbul 29 Mayıs Üniversitesi Kız Öğrenci Konukevi
Proje Yeri: İstanbul, Ümraniye
Proje Ofisi: Zambak Mimarlık
Proje Tipi: Yurt / Konukevi
Proje Tipi Grubu: Konaklama
Tasarım Ekibi: Kamil Gürbüz
İşveren: İstanbul 29 Mayıs Üniversitesi
Danışman: Fehmi Kızıl
Yardımcı: Serkan Gudu, Eren Uyumaz
Fotoğraf: Alp Eren, ALTKAT Architectural Photography
Proje Başlangıç Yılı: 2012
Proje Bitiş Yılı: 2013
İnşaat Başlangıç Yılı: 2013
İnşaat Bitiş Yılı: 2014
Arsa Alanı: 11,997 m²
Toplam İnşaat Alanı: 39,730 m²