30/38
Paylaş
Resmi Orjinal Boyutunda Göster
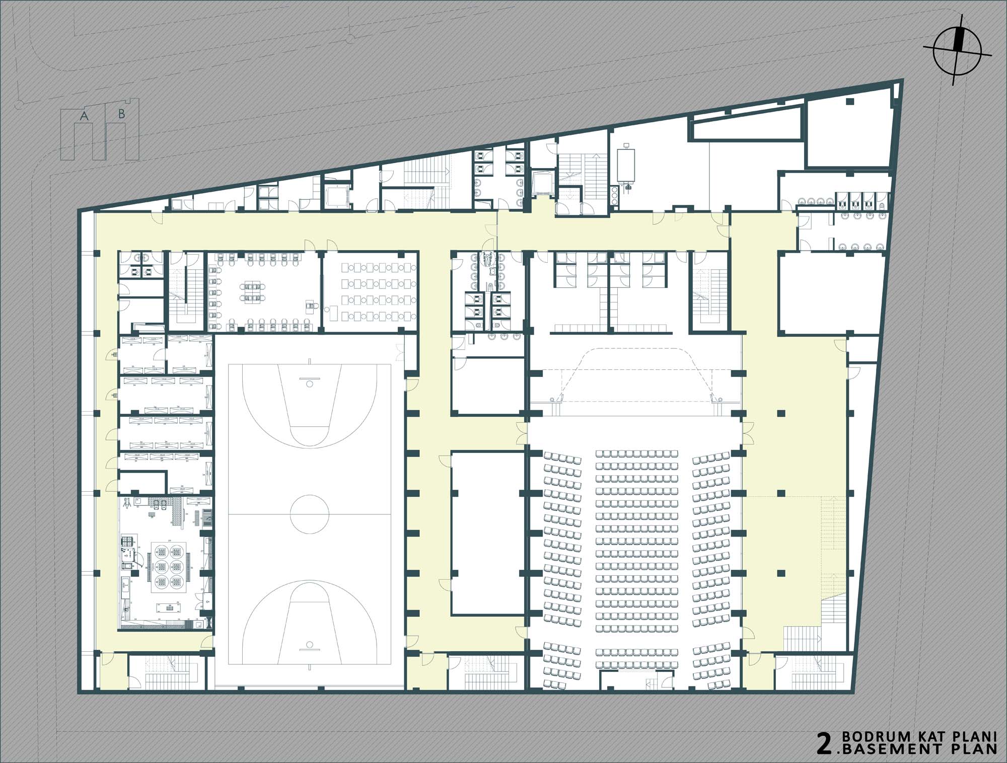
Murat Hüdavendigar Üniversitesi Sultangazi Yerleşkesi
Proje Yeri: İstanbul, Sultangazi
Proje Ofisi: Zambak Mimarlık
Proje Tipi: Üniversite Kampüsü, Yüksek Öğretim Yapısı
Proje Tipi Grubu: Eğitim
Tasarım Ekibi: Kadir Karakoç
İşveren: Murat Hüdavendigar Üniversitesi
Danışman: Fehmi Kızıl
Yardımcı: Nihat Saltan, Eren Uyumaz
İç Mekan Projesi: Hakan Kurtuluş, Ahmet Niziplioğlu
Proje Yöneticisi: Cihangir Demirhan, Hamit İpek, Zambak Mimarlık
Fotoğraf: Alp Eren, ALTKAT Architectural Photography
Proje Başlangıç Yılı: 2012
Proje Bitiş Yılı: 2013
İnşaat Başlangıç Yılı: 2012
İnşaat Bitiş Yılı: 2014
Arsa Alanı: 3,453 m²
Toplam İnşaat Alanı: 13,208 m²