36/42
Paylaş
Resmi Orjinal Boyutunda Göster
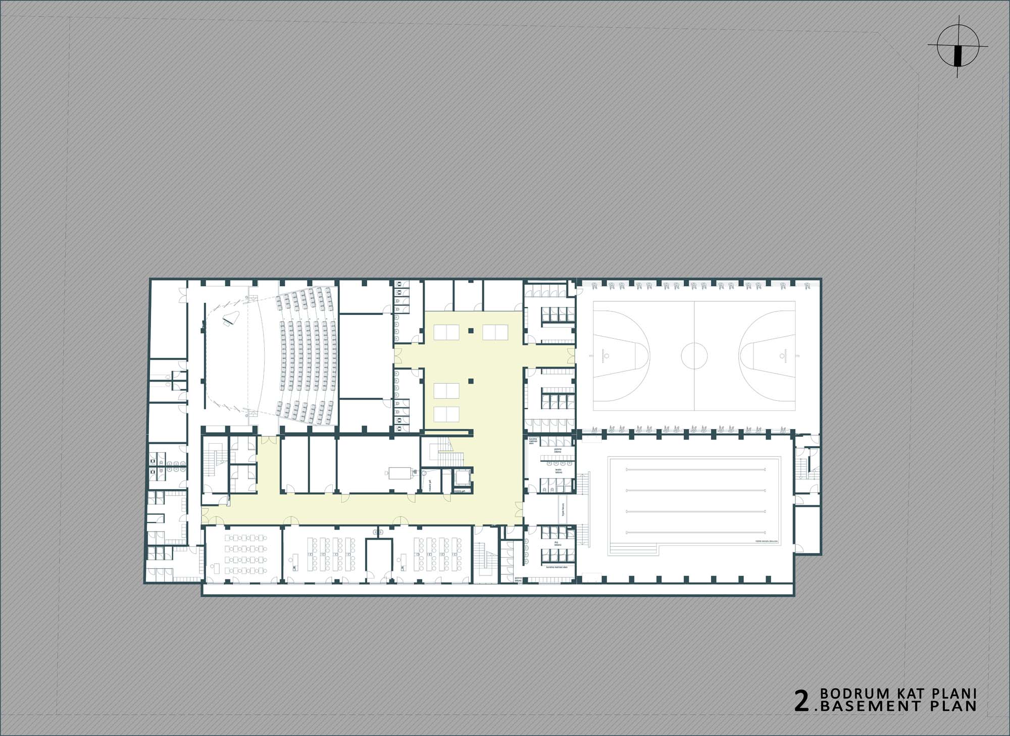
Sentez Koleji
Proje Yeri: Adapazarı (Sakarya), Serdivan
Proje Ofisi: Zambak Mimarlık
Proje Tipi: Lise / Ortaöğretim
Proje Tipi Grubu: Eğitim
Tasarım Ekibi: Ahmet Anıl
İşveren: İnalsan Mühendislik, Sentez Koleji
Danışman: Fehmi Kızıl
Yardımcı: Mikail Şahin, İsmail Tosun, Mesut Dural, Eren Uyumaz
Proje Yöneticisi: İnalsan Mühendislik
Fotoğraf: Kadir Karakoç
Proje Başlangıç Yılı: 2012
Proje Bitiş Yılı: 2013
İnşaat Başlangıç Yılı: 2013
İnşaat Bitiş Yılı: 2014
Arsa Alanı: 8,254 m²
Toplam İnşaat Alanı: 14,745 m²