24/27
Paylaş
Resmi Orjinal Boyutunda Göster
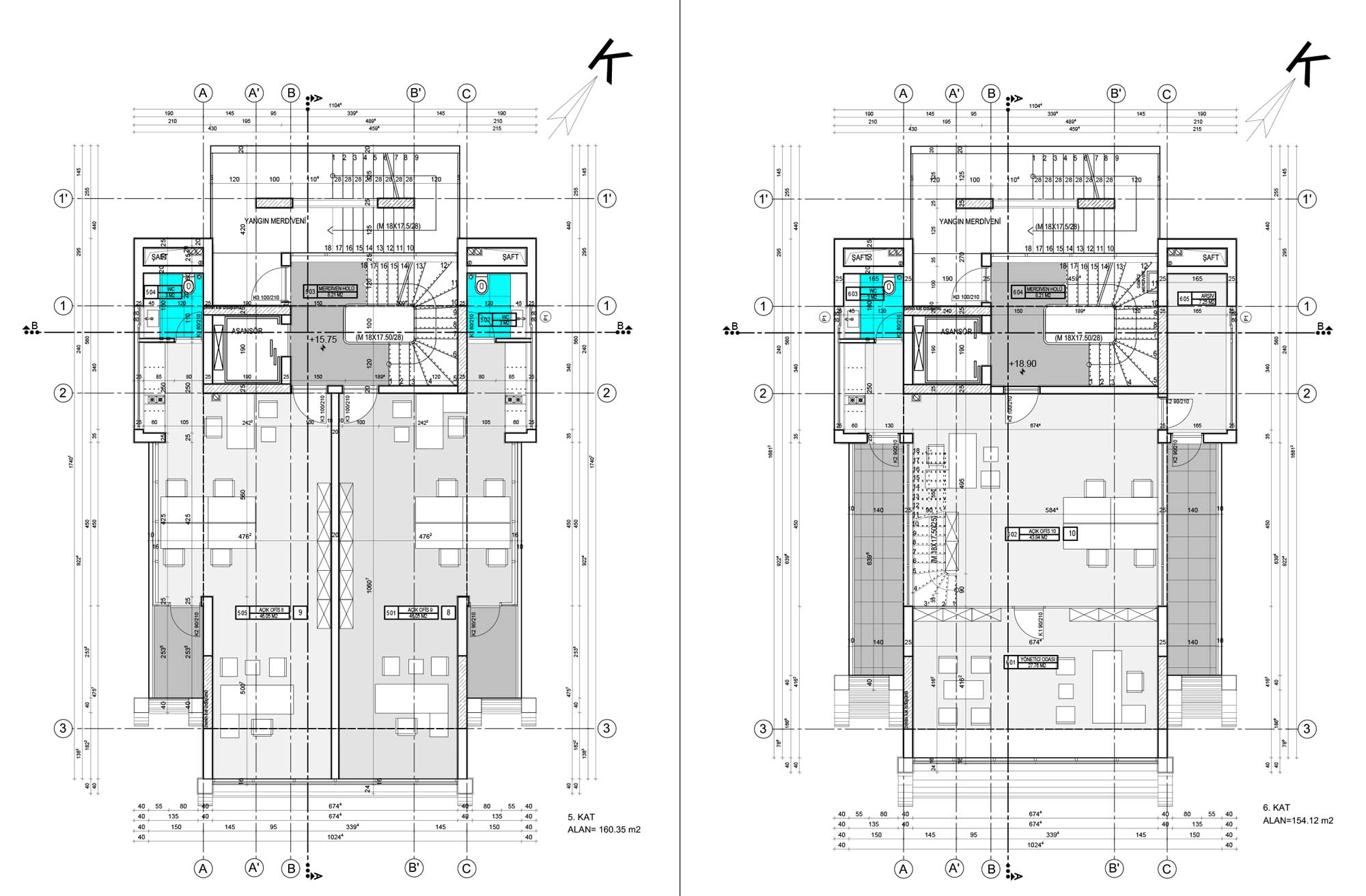
Mehmet Özbek Plaza
Proje Yeri: Konyaaltı, Antalya
Proje Ofisi: DNA Mimarlık Nail Atasoy
Proje Tipi: Ofis
Tasarım Ekibi: Nail Atasoy
Yardımcı: İnci Sekreter, Hülya Tuncer, Sümeyya Yeğiner, Emine Dönderici, Arzu Atasoy
İç Mekan Projesi: DNA Mimarlık Nail Atasoy
Statik Projesi: Akın Akıncı
Elektrik Projesi: Hikmet Demir, Kemal Açıkalın
Proje Başlangıç Yılı: 2012
Proje Bitiş Yılı: 2012
İnşaat Başlangıç Yılı: 2013
İnşaat Bitiş Yılı: 2014
Arsa Alanı: 517 m2
Toplam İnşaat Alanı: 1226 m2