18/30
Paylaş
Resmi Orjinal Boyutunda Göster
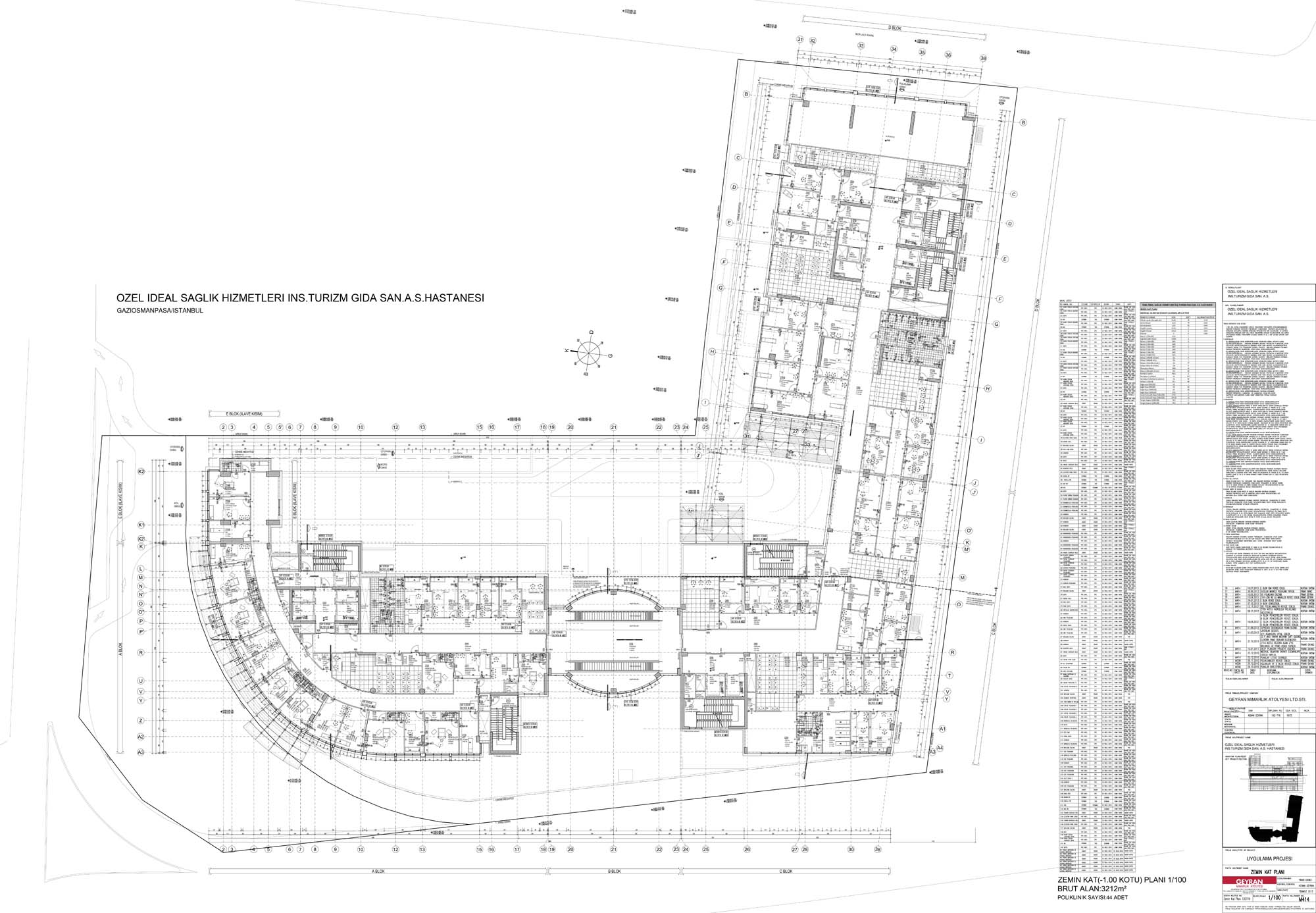
İdeal Sağlık Hizmetleri Hastanesi
Project Location: Gaziosmanpaşa, İstanbul
Project Office: Geyran Mimarlık Atölyesi
Project Type: Hospital / Clinic
Proje Tipi Grubu: Sağlık
Tasarım Ekibi: Kenan Geyran, Pınar Ekinci
Employer: Özel İdeal Sağlık Hizmetleri
Yardımcı: Vartan Demirci, Nurşah Öktem, Pınar Geyran, Haluk Şimşek, Yasin Özçelik
Ana Yüklenici: İMPA Yapı
Interior Architecture: Geyran Mimarlık Atölyesi
Structural Project: Timka Mühendislik
Mechanical Project: ABC Mekanik
Electrical Project: Erk Mühendislik
Photography: Kenan Geyran
Project Start Date: 2008
Project End Date: 2009
Construction Start Date: 2009
Construction End Date: 2014
Building Plot Area: 7,268 m²
Total Construction Area: 52,500 m²