9/9
Paylaş
Resmi Orjinal Boyutunda Göster
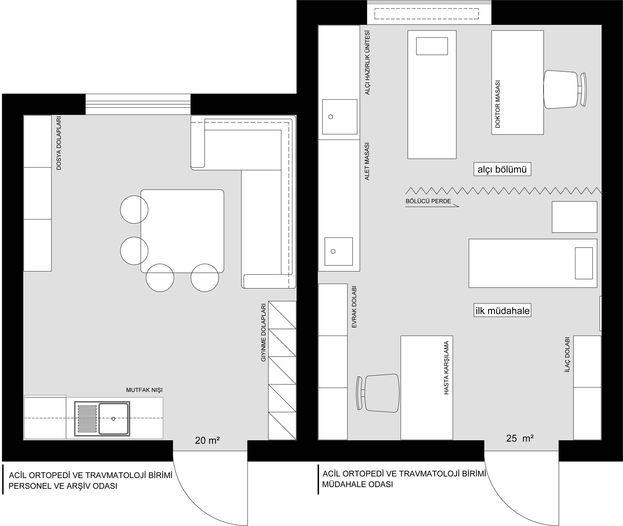
İstanbul Üniversitesi Tıp Fakültesi Acil Ortopedi ve Travmatoloji Birimi
Proje Yeri: Fatih, İstanbul
Proje Ofisi: Gülnar Ocakdan Architecture (GOA)
Proje Tipi: Hastane / Poliklinik
Proje Tipi Grubu: Sağlık
Tasarım Ekibi: Gülnar Ocakdan
İşveren: İstanbul Üniversitesi
Proje Başlangıç Yılı: 2014
Proje Bitiş Yılı: 2014
İnşaat Başlangıç Yılı: 2014
İnşaat Bitiş Yılı: 2014
Toplam İnşaat Alanı: 45 m²