7/7
Paylaş
Resmi Orjinal Boyutunda Göster
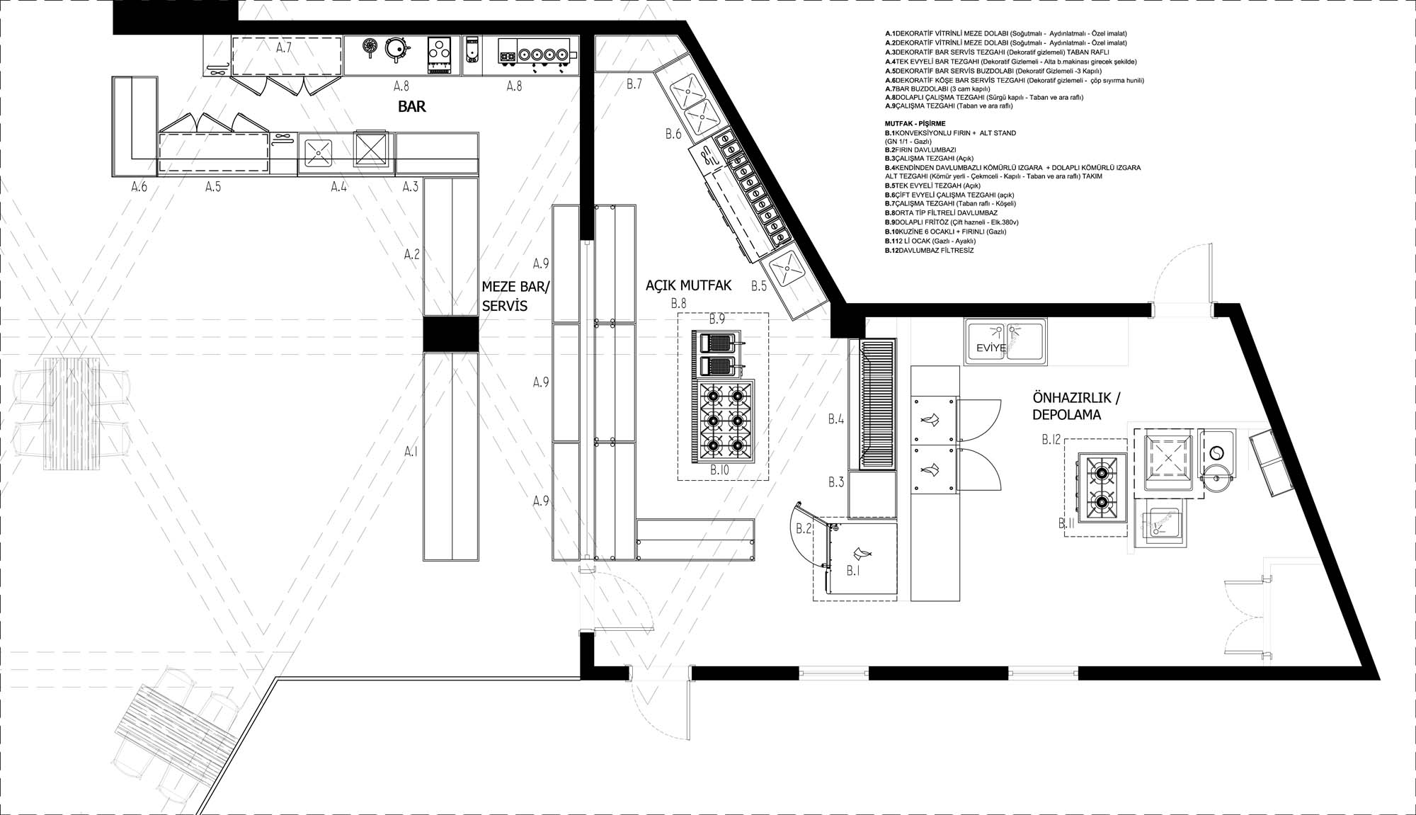
Göl Balık Restaurant
Proje Yeri: Başakşehir, İstanbul
Proje Ofisi: Gülnar Ocakdan Architecture (GOA)
Proje Tipi: Restoran / Kafe / Bar
Proje Tipi Grubu: Ticari
Tasarım Ekibi: Gülnar Ocakdan
İşveren: Cıty Turizm
Fotoğraf: Gülnar Ocakdan
Proje Başlangıç Yılı: 2013
Proje Bitiş Yılı: 2014
İnşaat Başlangıç Yılı: 2014
İnşaat Bitiş Yılı: 2014
Toplam İnşaat Alanı: 150 m2