23/31
Paylaş
Resmi Orjinal Boyutunda Göster
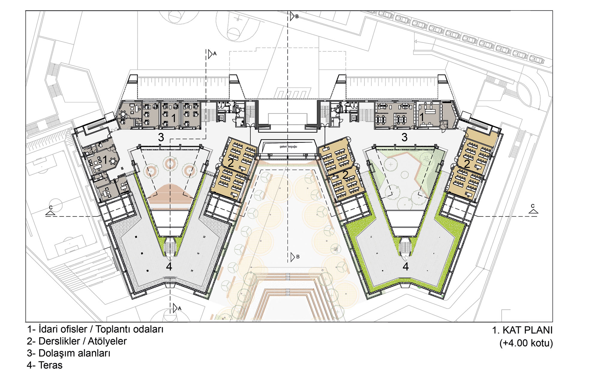
SEV Amerikan Koleji
Proje Yeri: Çekmeköy, İstanbul
Proje Ofisi: Evrenol Architects
Proje Tipi: Lise / Ortaöğretim
Proje Tipi Grubu: Eğitim
Tasarım Ekibi: Mehpare Evrenol, Alp Evrenol, Erkin Süzer
İşveren: Sağlık ve Eğitim Vakfı (SEV)
Yardımcı: Pınar Süzer, Alican Baycan
Ana Yüklenici: As Yapı
Peyzaj Mimarlığı: Spiga Peyzaj Proje Danışmanlık
İç Mekan Projesi: Evrenol Architects
Proje Yöneticisi: Yeşim Asena
Statik Projesi: Büro Statik
Mekanik Projesi: Detay Mühendislik
Elektrik Projesi: Kaver Mühendislik
Fotoğraf: Uğur Eren
Proje Başlangıç Yılı: 2011
Proje Bitiş Yılı: 2013
İnşaat Başlangıç Yılı: 2012
İnşaat Bitiş Yılı: 2014
Arsa Alanı: 44.170 m²
Toplam İnşaat Alanı: 48.000 m²