34/37
Paylaş
Resmi Orjinal Boyutunda Göster
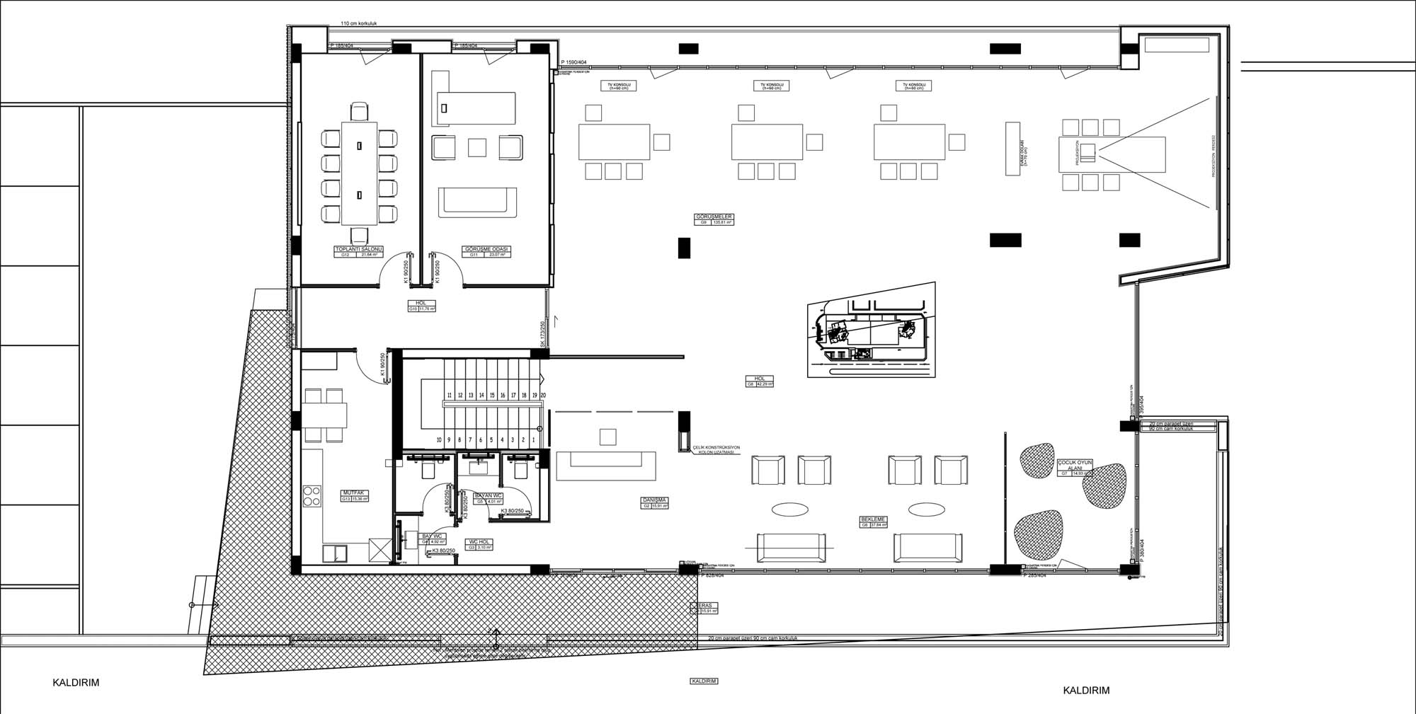
Parktepe Konutları Satış Ofisi İç Mekan Projesi
Proje Yeri: Çankaya, Ankara
Proje Ofisi: İki Derece Mimarlık
Proje Tipi: Satış Ofisi
Proje Tipi Grubu: Ticari
Tasarım Ekibi: Yaman Pamukcu, Erkan Erarslan
İşveren: Şahika Grup
Ana Yüklenici: Şahika Grup
Aydınlatma Projesi: İki Derece Mimarlık
Fotoğraf: Fethi Mağara
Proje Başlangıç Yılı: 2013
Proje Bitiş Yılı: 2013
İnşaat Başlangıç Yılı: 2013
İnşaat Bitiş Yılı: 2014