14/28
Paylaş
Resmi Orjinal Boyutunda Göster
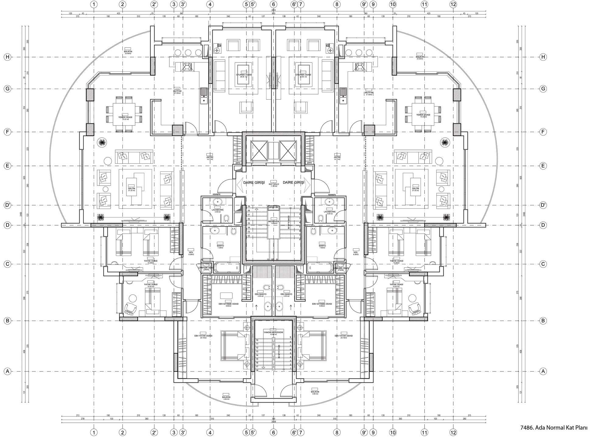
Başkent Premium
Project Location: Melikgazi, Kayseri
Project Office: Sabri Paşayiğit Architects
Project Type: Housing Complex
Proje Tipi Grubu: Konut
Tasarım Ekibi: Sabri Paşayiğit, Elif Zeyrek
Employer: Başyazıcıoğlu Yapı
Yardımcı: Ece Karakoç, Bilgehan Akça, Gizem Candemir Kılıçoğlu
Ana Yüklenici: Başyazıcıoğlu Yapı
Structural Project: Sigma Mühendislik
Photography: Mehmet Öztekin, Flycam
Project Start Date: 2010
Project End Date: 2011
Construction Start Date: 2012
Construction End Date: 2014
Building Plot Area: 17,000 m2
Total Construction Area: 72,000 m²