29/29
Paylaş
Resmi Orjinal Boyutunda Göster
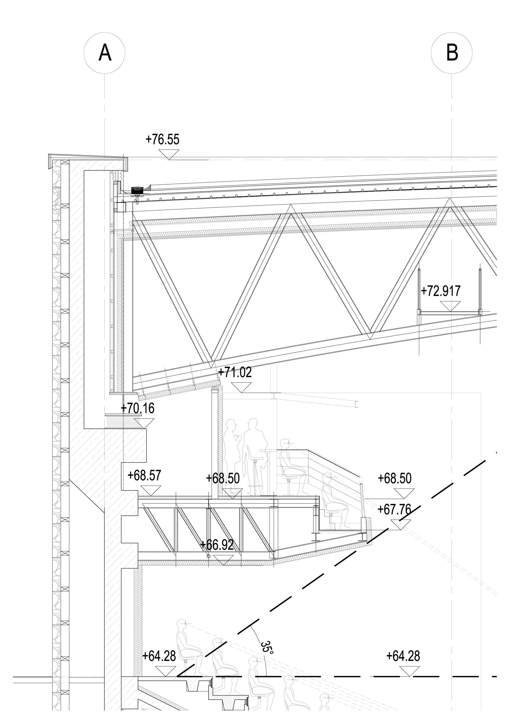
Volkswagen Arena
Proje Yeri: Maslak, İstanbul
Proje Ofisi: Yazgan Tasarım Mimarlık
Proje Tipi: Konser Salonu
Tasarım Ekibi: Kerem Yazgan, Begüm Yazgan
İşveren: Pozitif Arena Konser Salon İşletmeleri A.Ş.
Danışman: Blackbox Operations BV, Erduman Mühendislik, DSGNWRKSHP
Yardımcı: Cem Başak, Canan Çokal Çelebi, Özlem Oruç, Mehmet Baytan, Mehtap Yıldız, Meltem Beğenen
Ana Yüklenici: TBM İnşaat
İç Mekan Projesi: Yazgan Tasarım Mimarlık
Statik Projesi: Pro-net Mühendislik
Mekanik Projesi: Pro-net Mühendislik, GN Mühendislik
Elektrik Projesi: HB Teknik Elektrik Mühendislik
Akustik Danışmanı: Adviesbureau Peutz, Peutz / PB Müzik Yapım
Yangın Güvenlik Danışmanı: Karina, Karina Tasarım Danışmanlık ve Eğitim Hizmetleri
Fotoğraf: Yunus Özkazanç, Kerem Yazgan
Proje Başlangıç Yılı: 2011
Proje Bitiş Yılı: 2011
İnşaat Başlangıç Yılı: 2014
İnşaat Bitiş Yılı: 2014
Toplam İnşaat Alanı: 12,000 m²