13/16
Paylaş
Resmi Orjinal Boyutunda Göster
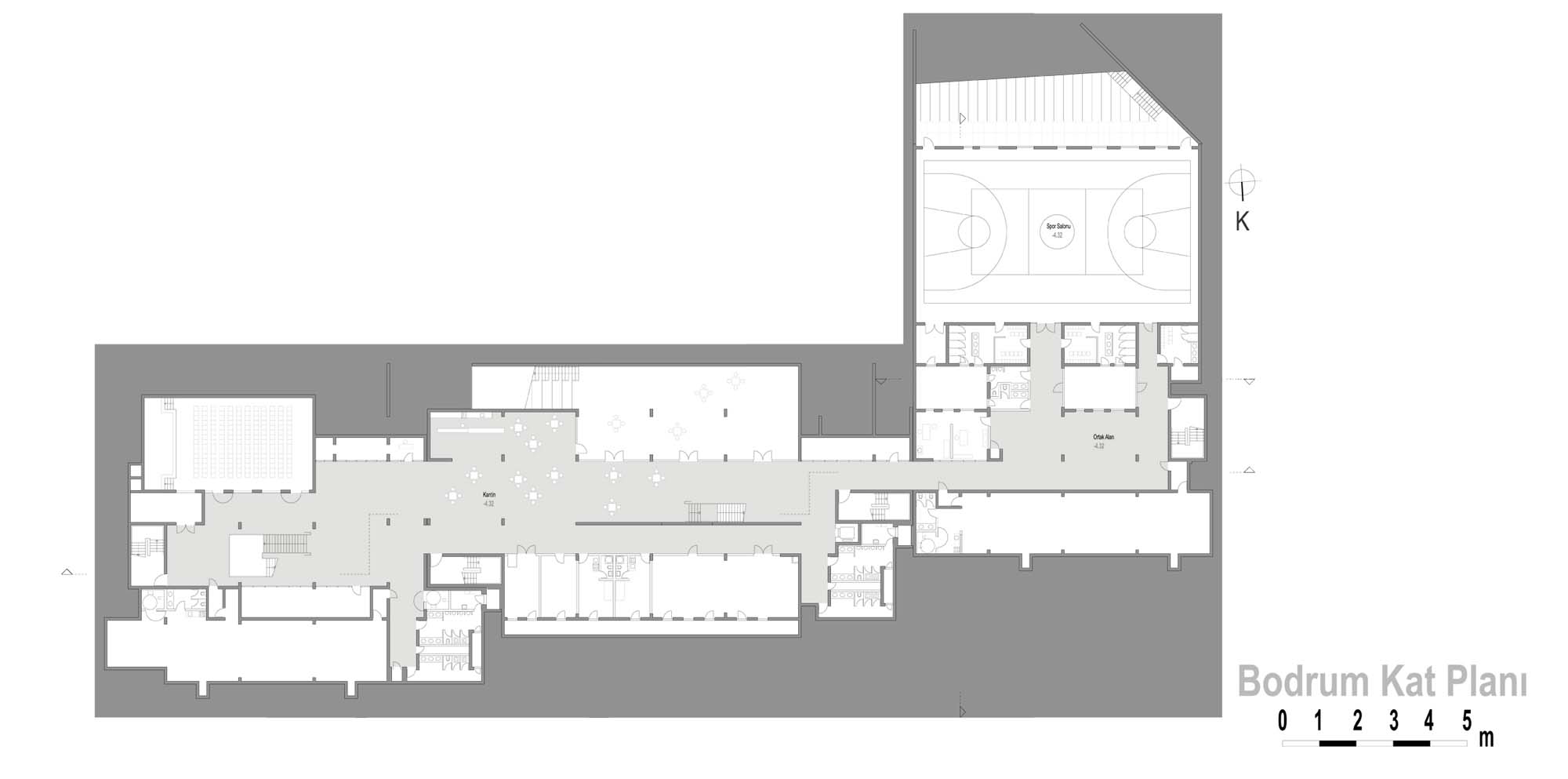
Zeytinburnu 100 Yıl Ticaret Meslek Lisesi
Proje Yeri: Zeytinburnu, İstanbul
Proje Ofisi: Uygur Mimarlık
Proje Tipi: Lise / Ortaöğretim
Proje Tipi Grubu: Eğitim
Tasarım Ekibi: Semra Uygur, Özcan Uygur
İşveren: Sevda Özkan İmamoğlu, Özcan Uygur, T.C. İstanbul Valiliği İl Özel İdaresi İstanbul Proje
Yardımcı: Eser Köken İşleyici, Zümral Aygüler Kartal, Sevda Özkan İmamoğlu
Ana Yüklenici: Akyapı İnşaat
Peyzaj Mimarlığı: Can Kubin
Proje Yöneticisi: İsmail Uca
Statik Projesi: Levent Aksaray
Mekanik Projesi: Bahri Türkmen
Elektrik Projesi: Kemal Ovacık
Tesisat Projesi: Bahri Türkmen
Fotoğraf: Cemal Emden
Proje Başlangıç Yılı: 2011
Proje Bitiş Yılı: 2013
İnşaat Başlangıç Yılı: 2013
İnşaat Bitiş Yılı: 2014
Arsa Alanı: 10,639 m²
Toplam İnşaat Alanı: 10,764 m²