15/15
Paylaş
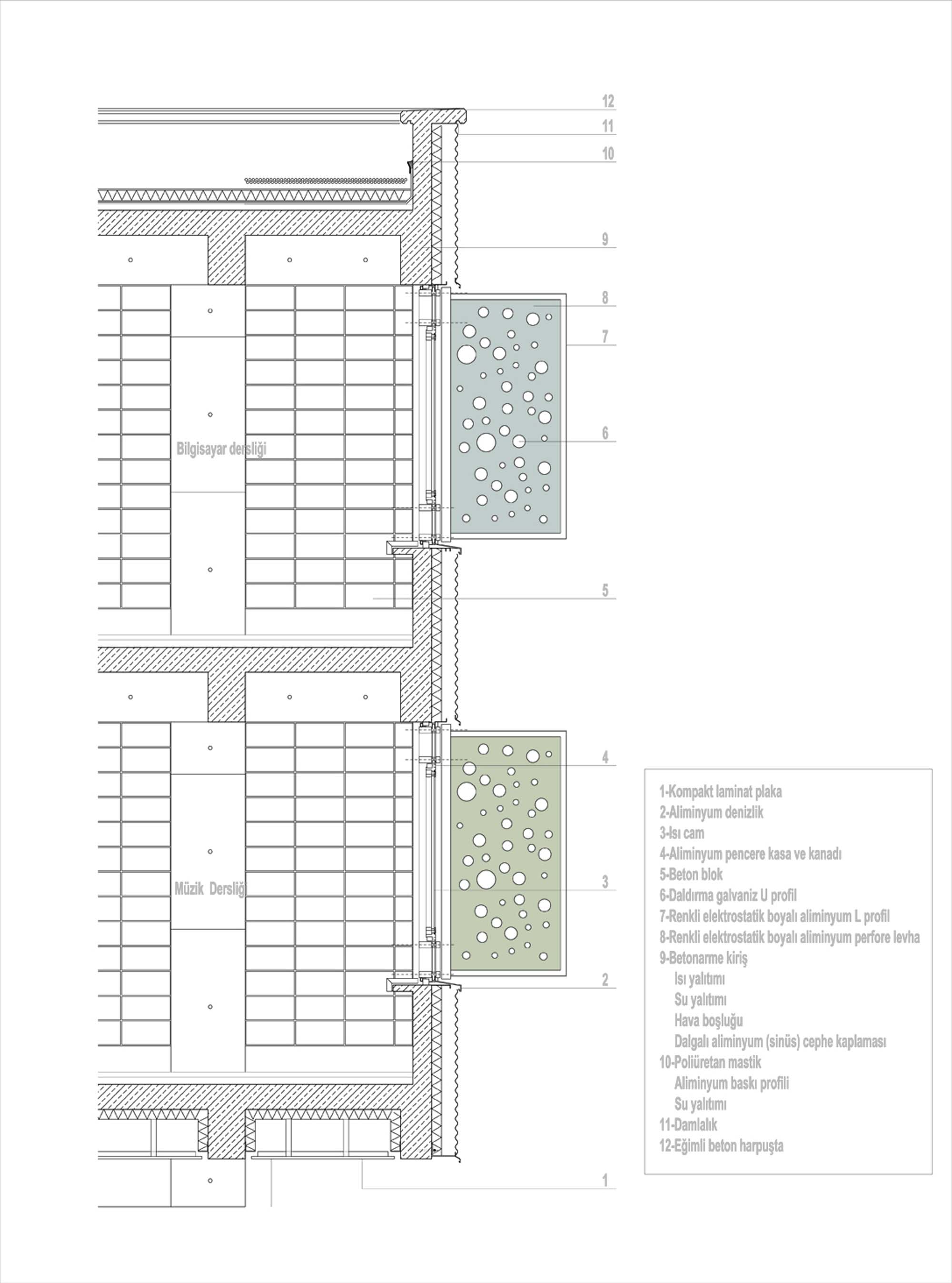
Resmi Orjinal Boyutunda Göster
Beşiktaş Yeni Levent Lisesi
Proje Yeri: Beşiktaş, İstanbul
Proje Ofisi: Uygur Mimarlık
Proje Tipi: Lise / Ortaöğretim
Proje Tipi Grubu: Eğitim
Tasarım Ekibi: Semra Uygur, Özcan Uygur
İşveren: T.C. İstanbul Valiliği İl Özel İdaresi İstanbul Proje
Yardımcı: Necati Seren, Güliz Erkan, Emine Kirman
Ana Yüklenici: Mustafa Ekşi İnşaat
Peyzaj Mimarlığı: Can Kubin
Proje Yöneticisi: Murat Öztürk
Statik Projesi: Levent Aksaray
Mekanik Projesi: Bahri Türkmen
Elektrik Projesi: Kemal Ovacık
Tesisat Projesi: Bahri Türkmen
Fotoğraf: Cemal Emden
Proje Başlangıç Yılı: 2011
Proje Bitiş Yılı: 2013
İnşaat Başlangıç Yılı: 2013
İnşaat Bitiş Yılı: 2014
Arsa Alanı: 8,486 m²
Toplam İnşaat Alanı: 1,016 m²