14/14
Paylaş
Resmi Orjinal Boyutunda Göster
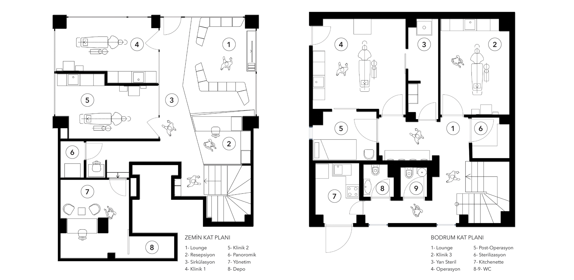
Doğudent Diş Sağlığı Polikliniği
Proje Yeri: İstanbul
Proje Ofisi: İpek Baycan Architects
Proje Tipi: Hastane / Poliklinik
Proje Tipi Grubu: Sağlık
Tasarım Ekibi: İpek Baycan Magriso, Şule Ertürk
Mimari Proje Ekibi: Ömer Aksakal
Fotoğraf: Ayça Taylan
İnşaat Bitiş Yılı: 2014