12/12
Paylaş
Resmi Orjinal Boyutunda Göster
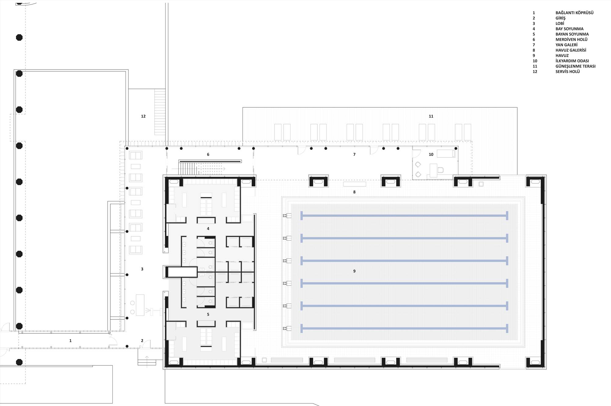
Bilkent Üniversitesi Kapalı Yüzme Havuzu
Proje Yeri: Ankara
Proje Ofisi: Bütüner Mimarlık
Proje Tipi: Kapalı Yüzme Havuzu
Proje Tipi Grubu: Rekreasyon / Spor
Tasarım Ekibi: Hüseyin Bütüner, Cem Korkmaz
İşveren: Bilkent Üniversitesi Rektörlüğü
Yardımcı: Burcu Bilgenoğlu Umur
Ana Yüklenici: Bilbak AŞ
Statik Projesi: Mehmet Zafer Kınacı, Kınacı Mühendislik
Mekanik Projesi: Metta Mühendislik, Meriç Sapçı
Elektrik Projesi: Yurdakul Mühendislik, Özgür Ulupınar
Fotoğraf: Koray Kalay, Cem Korkmaz
Proje Başlangıç Yılı: 2013
Proje Bitiş Yılı: 2013
İnşaat Başlangıç Yılı: 2013
İnşaat Bitiş Yılı: 2014
Arsa Alanı: 78.000 m2
Toplam İnşaat Alanı: 2.300 m2