15/15
Paylaş
Resmi Orjinal Boyutunda Göster
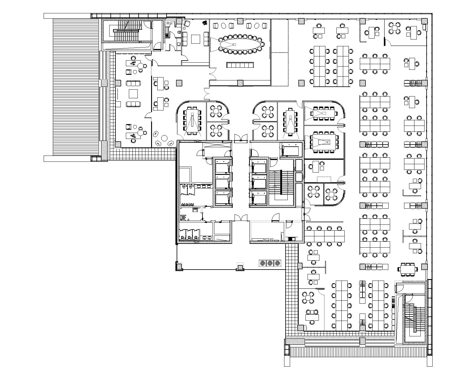
Hedef Filo Genel Merkez Ofisi
Proje Yeri: Kağıthane, İstanbul
Proje Ofisi: Habif Mimarlık
Proje Tipi: Ofis
Proje Tipi Grubu: Ticari
Tasarım Ekibi: Hakan Habif
İnşaat Bitiş Yılı: 2014
Toplam İnşaat Alanı: 3000m²