13/24
Paylaş
Resmi Orjinal Boyutunda Göster
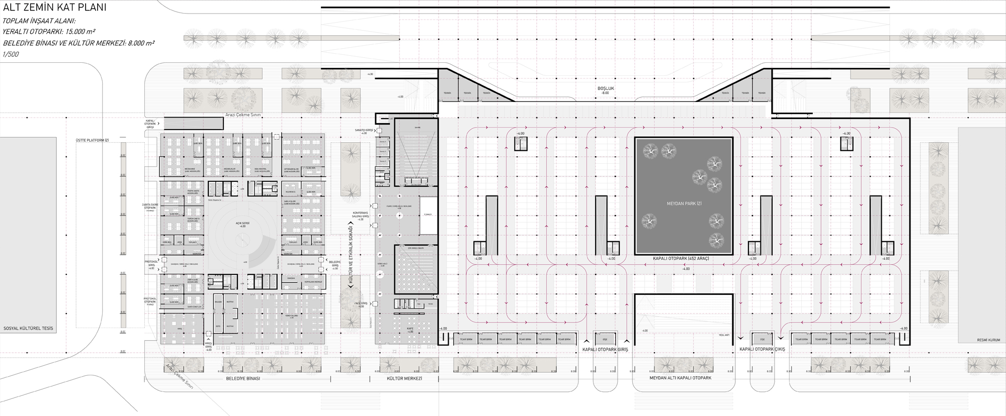
Tekirdağ Büyükşehir Belediyesi Hizmet Binası Proje Tasarım Yarışması-2.Mansiyon
Proje Yeri: Tekirdağ
Proje Ofisi: OfficePAN Mimarlık, NODE Architects
Proje Tipi: Belediye Hizmet Binası
Proje Tipi Grubu: 2. Mansiyon
Tasarım Ekibi: Doğan Türkkan, Cihan Sevindik, Özge Müberra Akyüz, Çağatay Akyüz, Sena İkiz
Yardımcı: İnan Tokay