5/23
Paylaş
Resmi Orjinal Boyutunda Göster
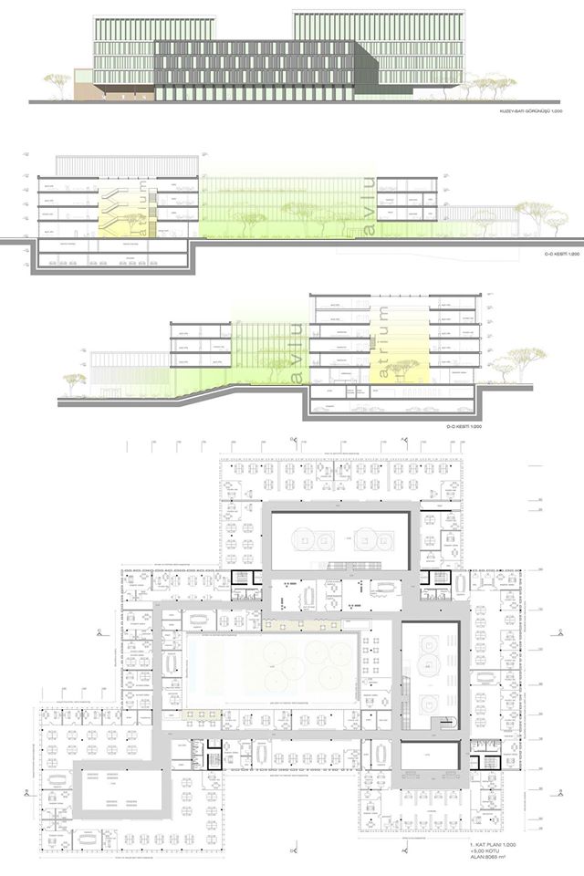
Satınalma - Tekirdağ Büyükşehir Belediye Hizmet Binası, Meydan ve Çevresinin Düzenlenmesi Mimari ve Kentsel Tasarım Proje Yarışması
Proje Yeri: Tekirdağ
Proje Ofisi: Kolektif Mimarlar
Proje Tipi: Belediye Hizmet Binası
Proje Tipi Grubu: Satın Alma
Tasarım Ekibi: Barış Demir, Sıddık Güvendi, Tuna Han Koç, Mesut Yeşiltepe, Ümit Tarık Yaşar
Yardımcı: Dilan Şenses