20/34
Paylaş
Resmi Orjinal Boyutunda Göster
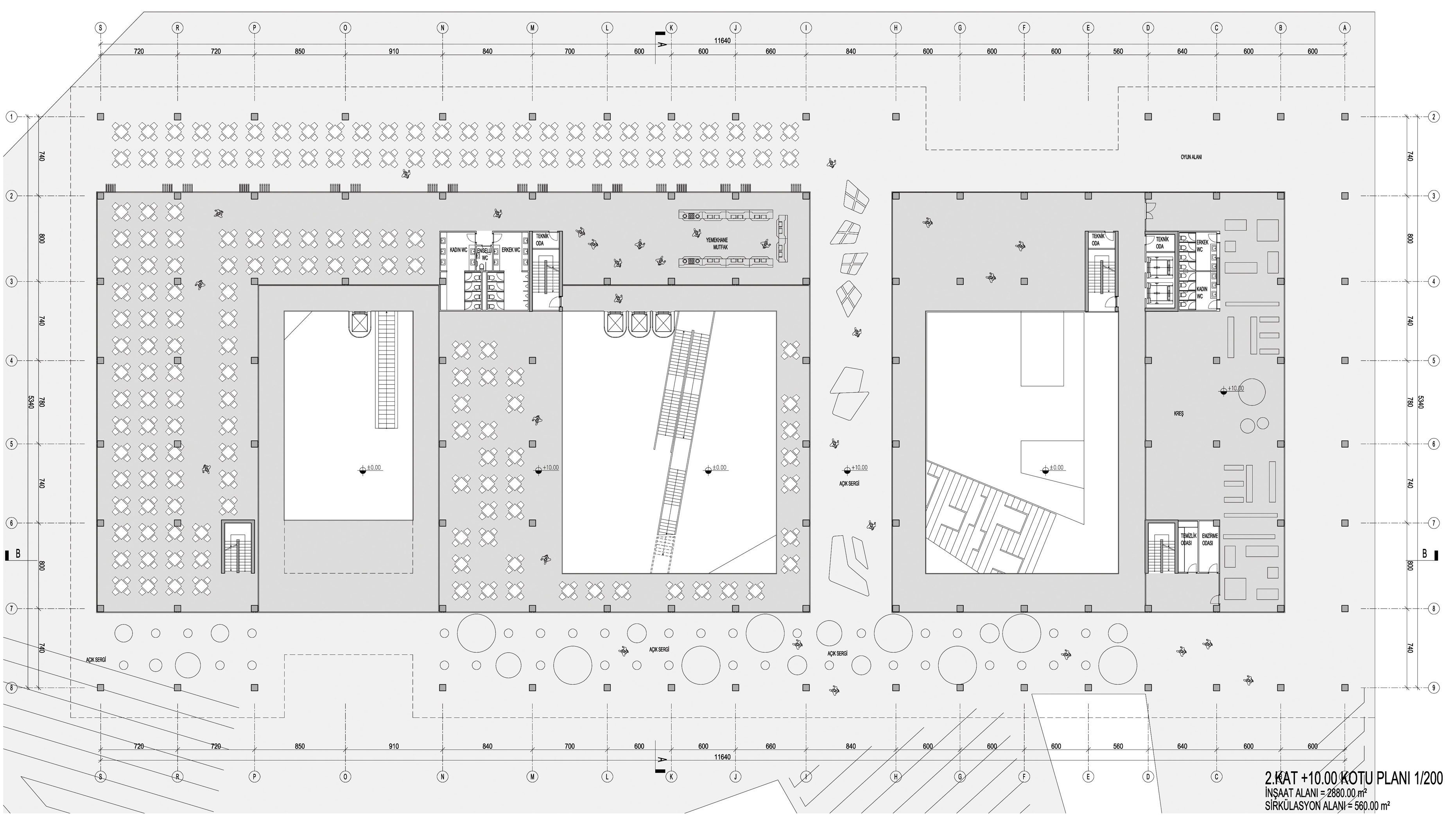
Satın Alma Ödülü - Tekirdağ Büyükşehir Belediye Hizmet Binası Proje Yarışması
Project Location: Tekirdağ
Project Type: Belediye Hizmet Binası
Proje Tipi Grubu: Satın Alma
Tasarım Ekibi: Semih Arslan, Yusuf Uyar, Nevzat Kasal, Serkan Ertuğ, Duygu Uzeler