10/16
Paylaş
Resmi Orjinal Boyutunda Göster
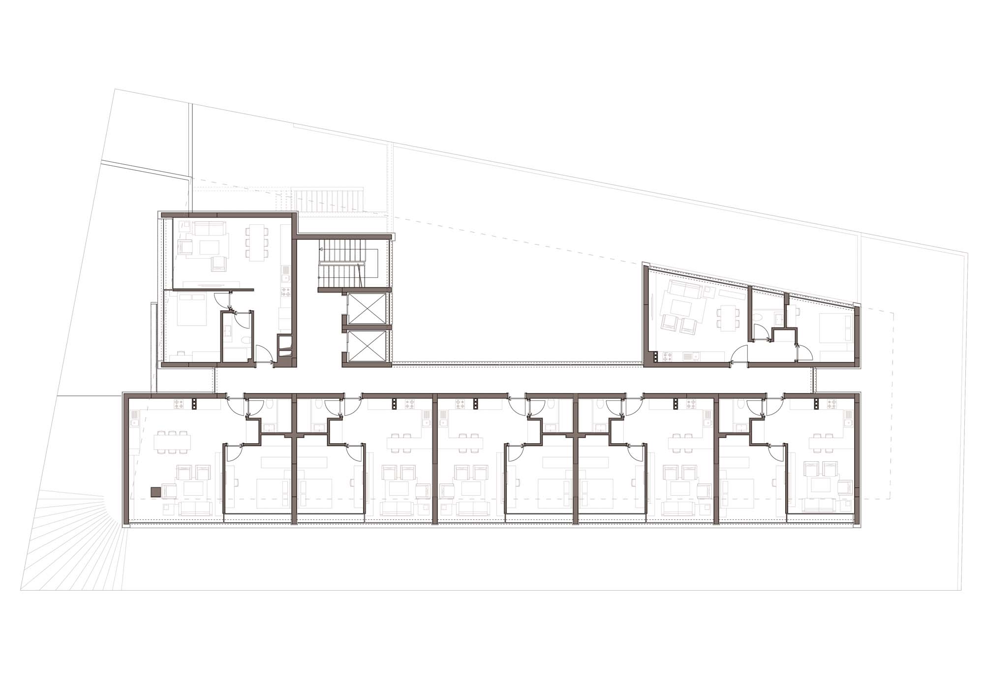
1+1 Apartman
Proje Yeri: Ankara, Çankaya
Proje Ofisi: İkikerebir
Proje Tipi: Apartman
Proje Tipi Grubu: Konut
Tasarım Ekibi: Hakan Evkaya, Kutlu İnanç Bal
İşveren: Ankara İnşaat, Ersa Mobilya
Yardımcı: Mehmet Yılmaz
Fotoğraf: Kutlu İnanç Bal
Proje Başlangıç Yılı: 2012
Proje Bitiş Yılı: 2012,
İnşaat Başlangıç Yılı: 2012
İnşaat Bitiş Yılı: 2014
Arsa Alanı: 1140 m2
Toplam İnşaat Alanı: 2800 m2