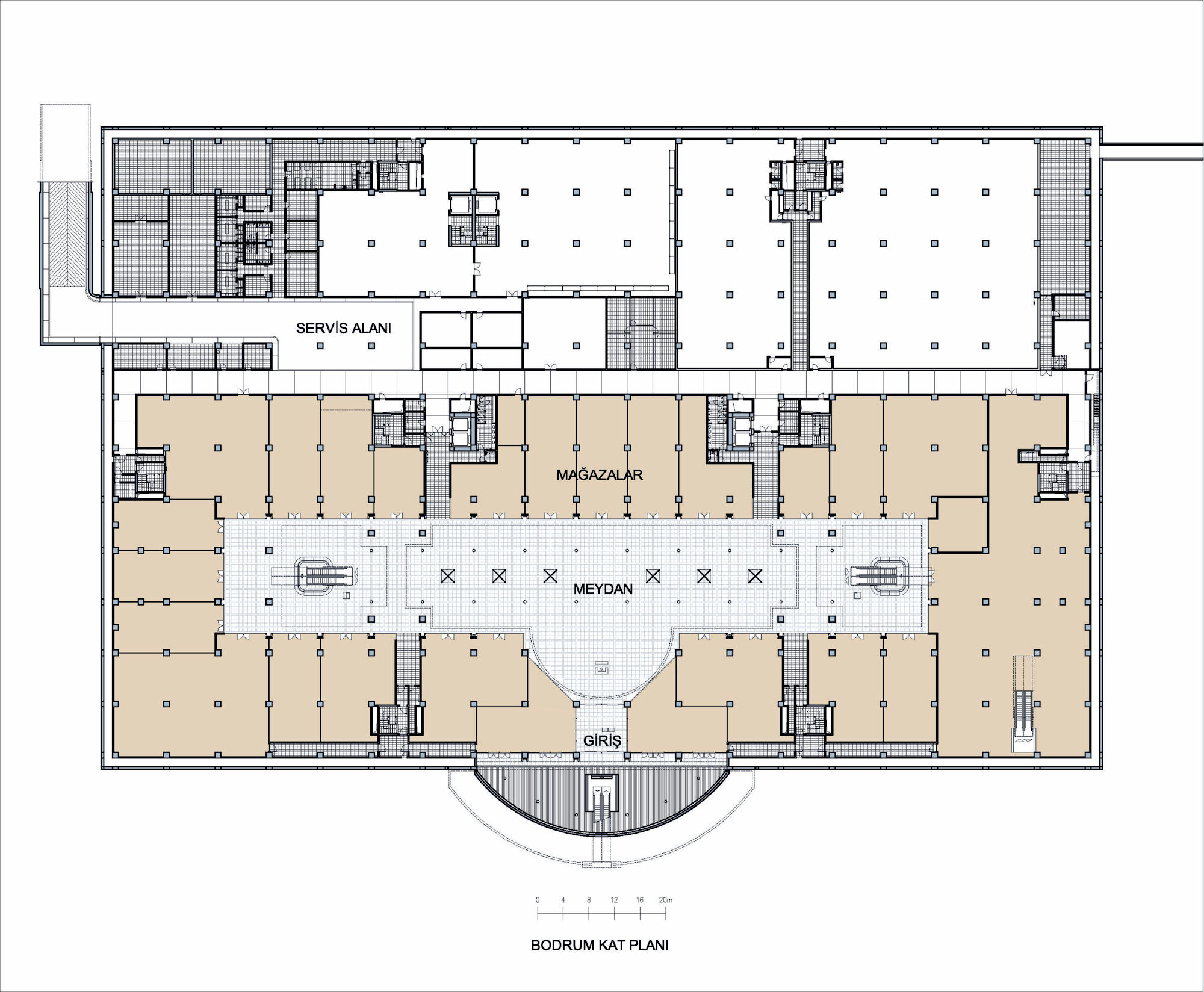
Bodrum Kat Planı
7/10
Paylaş
Resmi Orjinal Boyutunda Göster
Serdivan AVM
Proje Yeri: Adapazarı (Sakarya)
Proje Ofisi: Mutlu Çilingiroğlu MİAR Mimarlık Bürosu
Proje Tipi: Alışveriş Merkezi
Tasarım Ekibi: Mutlu Çilingiroğlu
İşveren: ADA-YAT Gayrimenkul
Yardımcı: Göksel Kılınç, Tülin Ulaş, Dağhan Çam, Cem Teoman, Gamze Tükel, Emine Hande Ciğerli, Merve İpek, Betül Alioğlu
Ana Yüklenici: Seza İnşaat
Peyzaj Mimarlığı: Arzu Nuhoğlu
Statik Projesi: İsmet Babuş
Mekanik Projesi: Gazanfer Köroğlu
Elektrik Projesi: Kamil Yiğit, Berrin Yavuz
Proje Başlangıç Yılı: 2007
Proje Bitiş Yılı: 2008
İnşaat Başlangıç Yılı: 2008
İnşaat Bitiş Yılı: 2010
Arsa Alanı: 23.800 m2
Toplam İnşaat Alanı: 48.500 m2