12/29
Paylaş
Resmi Orjinal Boyutunda Göster
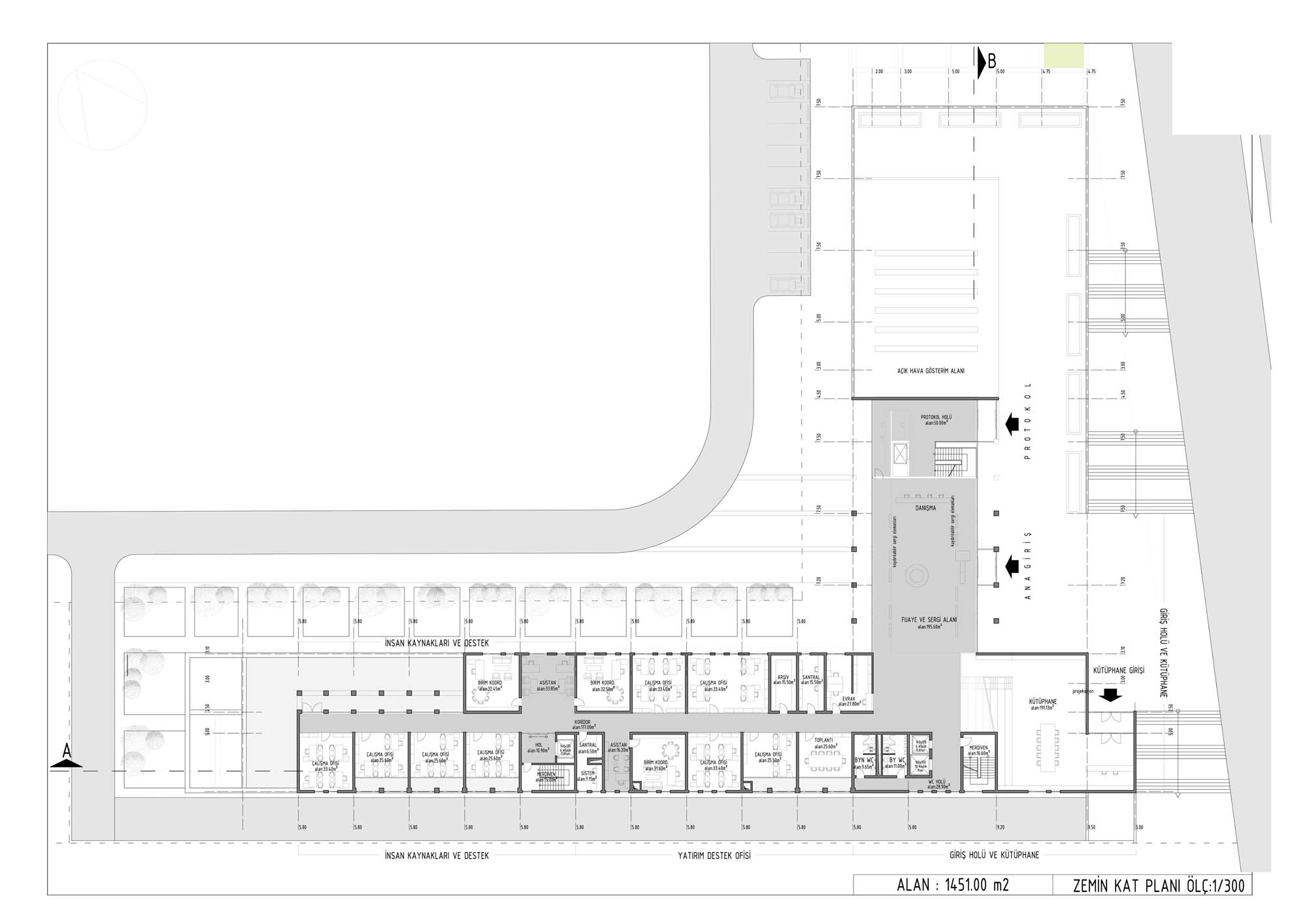
Nevşehir Ahiler Kalkınma Ajansı Hizmet Binası
Project Location: Kapadokya, Nevşehir
Project Office: İkikerebir
Project Type: Other Public Buildings
Proje Tipi Grubu: Kamu
Tasarım Ekibi: Hakan Evkaya, Kutlu İnanç Bal
Employer: Ahiler Kalkınma Ajansı
Structural Project: Fatih Mustafa Şahin
Mechanical Project: Gökçen Bayhan
Electrical Project: Cihan Öztürk
Project Start Date: 2014
Project End Date: 2014
Building Plot Area: 6000 m2
Total Construction Area: 8750 m2