6/15
Paylaş
Resmi Orjinal Boyutunda Göster
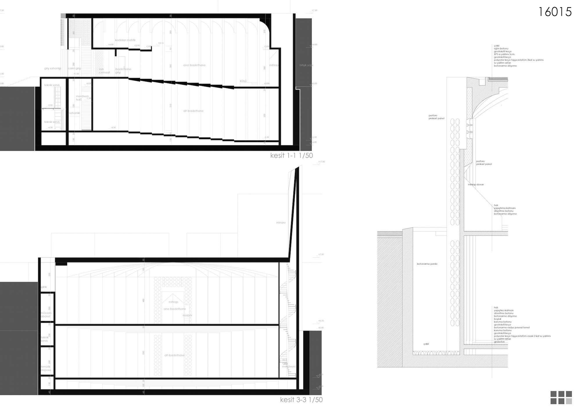
Katılımcı, Büyükada Çarşı Camii Mimari Fikir Projesi Yarışması
Project Location: Büyükada
Project Type: Mosque / Prayer Room
Proje Tipi Grubu: Katılımcı
Tasarım Ekibi: Sami Metin Uludoğan, M. Burak Altınışık
Structural Project: Efkan Solmaz
Mechanical Project: Ahmet Boybada
Electrical Project: Berrin Yavuz