11/14
Paylaş
Resmi Orjinal Boyutunda Göster
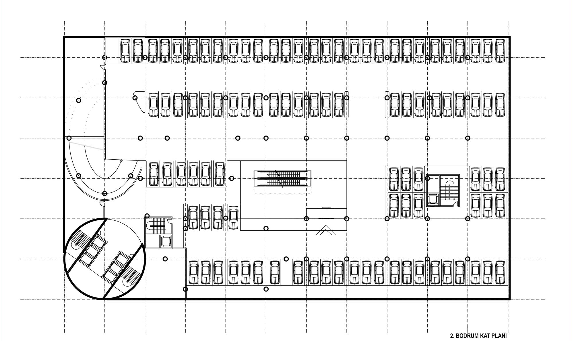
BC Trio Towers
Proje Yeri: Erbil, Irak
Proje Ofisi: 4M Mimarlık
Proje Tipi: Ofis, Mağaza / Showroom
Proje Tipi Grubu: Ticari
Tasarım Ekibi: Salih Zeki Salalı, Başak Özgören, Resul Saraç
İşveren: Signature Holding
Ana Yüklenici: Signature Holding
Proje Başlangıç Yılı: 2014
Proje Bitiş Yılı: 2015
İnşaat Başlangıç Yılı: 2016
Arsa Alanı: 12,000 m²
Toplam İnşaat Alanı: 50,000 m2