8/13
Paylaş
Resmi Orjinal Boyutunda Göster
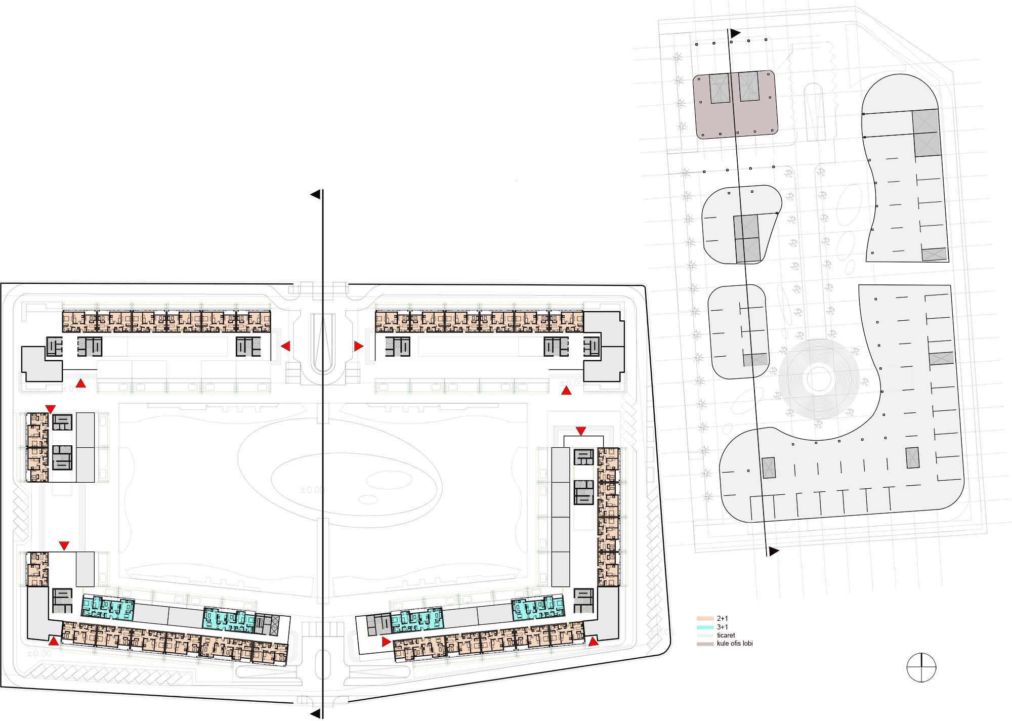
BC Prestige
Proje Yeri: Erbil, Irak
Proje Ofisi: 4M Mimarlık
Proje Tipi: Konut Sitesi / Grubu
Proje Tipi Grubu: Konut
Tasarım Ekibi: Salih Zeki Salalı, R. Güneş Gökçek
İşveren: Signature Holding
Ana Yüklenici: Signature Holding
Proje Başlangıç Yılı: 2014
Proje Bitiş Yılı: 2014
Arsa Alanı: 285,000 m2
Toplam İnşaat Alanı: 280,000 m2