37/38
Paylaş
Resmi Orjinal Boyutunda Göster
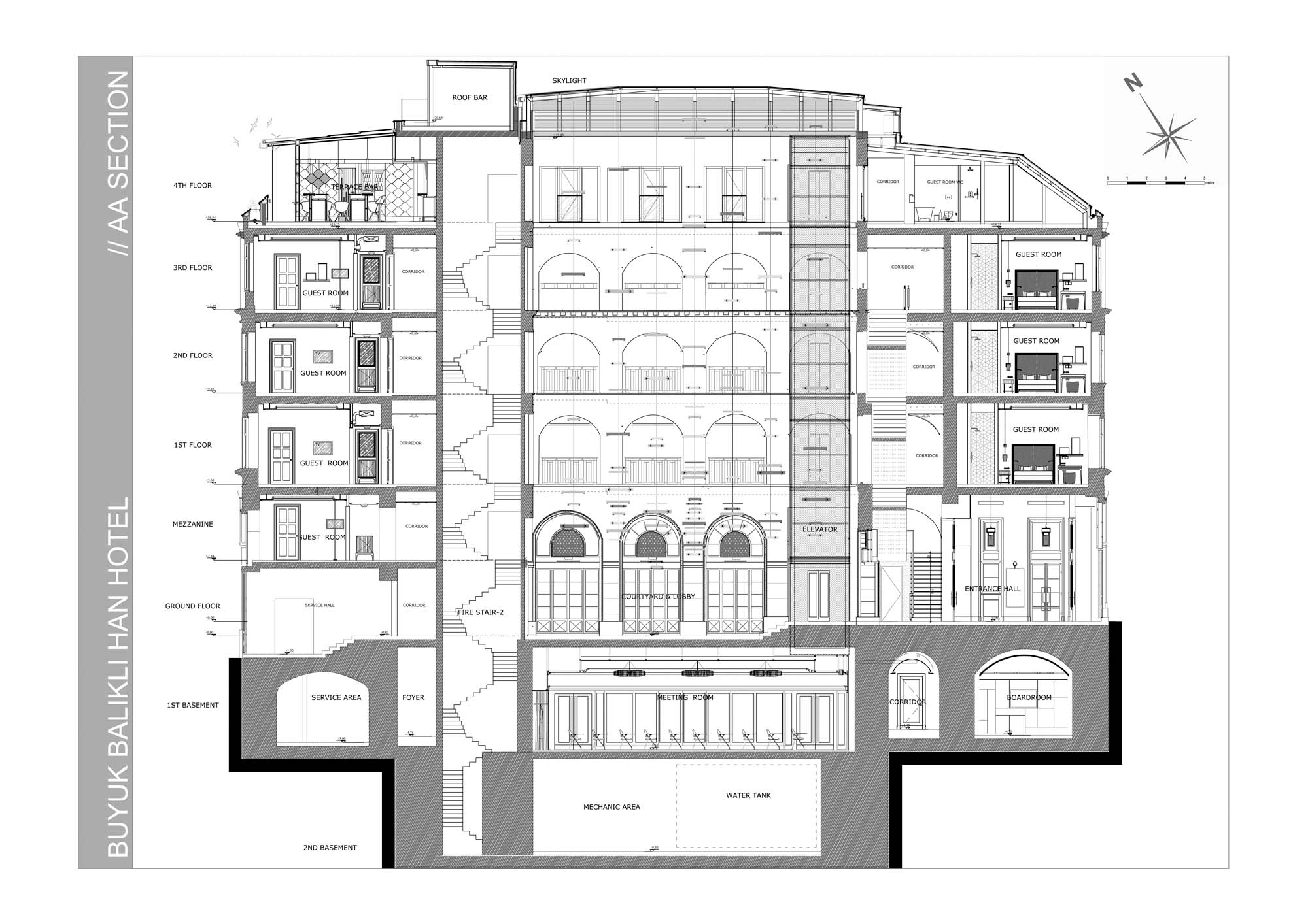
10 Karaköy Istanbul Hotel
Proje Yeri: Beyoğlu, İstanbul
Proje Ofisi: Metex Design Group
Proje Tipi: Otel / Motel
Proje Tipi Grubu: Konaklama
Tasarım Ekibi: Kağan Erk, Hüray Erk, Sinan Kafadar
İşveren: Nesa Group
Yardımcı: Özgür Karakılıç, Merve Bulut, Cansu Kesici, Asena Palalar, Eda Yayla, Evren Başik, İdil Tabak, Duygu Aksu, Gökhan Tüzinoğlu, Murat Saner, Ozan Falay
Ana Yüklenici: Nesa Group
İç Mekan Projesi: Hüray Erk
Statik Projesi: Sigma Mühendislik
Mekanik Projesi: Civa Mühendislik
Elektrik Projesi: Enproje Mühendislik
Yangın Güvenlik Danışmanı: Etik Mühendislik
Fotoğraf: Kemal Olca
Proje Başlangıç Yılı: 2012
Proje Bitiş Yılı: 2014
İnşaat Başlangıç Yılı: 2013
İnşaat Bitiş Yılı: 2014
Arsa Alanı: 950 m²
Toplam İnşaat Alanı: 6,315 m2