27/29
Paylaş
Resmi Orjinal Boyutunda Göster
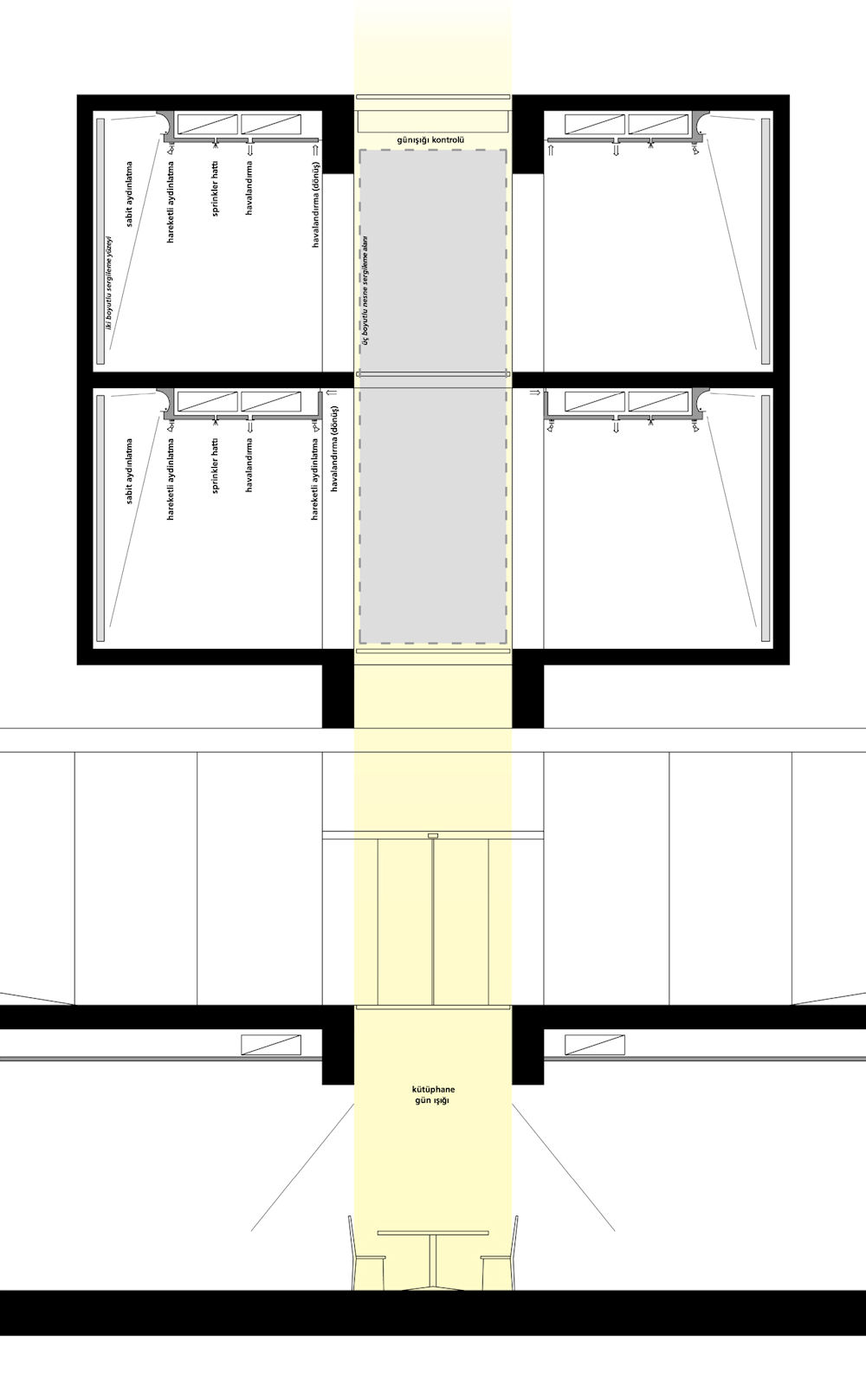
1. Ödül, Antalya Altın Portakal Film Müzesi Yarışma Projesi
Proje Yeri: Antalya
Proje Ofisi: CAA Studio
Proje Tipi: Müze
Proje Tipi Grubu: 1. Ödül
Tasarım Ekibi: Alişan Çırakoğlu
Proje Başlangıç Yılı: 2003
Proje Bitiş Yılı: 2003
Arsa Alanı: 1,550 m2
Toplam İnşaat Alanı: 3,021 m2