14/17
Paylaş
Resmi Orjinal Boyutunda Göster
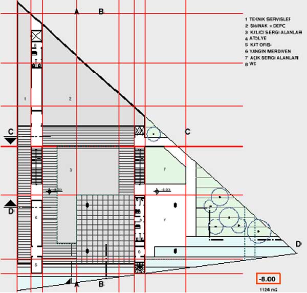
Katılımcı (Tozkoparan Mimarlık), Antalya Altın Portakal Film Müzesi Yarışma Projesi
Proje Yeri: Antalya
Proje Ofisi: Tozkoparan Mimarlık
Proje Tipi: Müze
Proje Tipi Grubu: Katılımcı
Tasarım Ekibi: Tevfik Tozkoparan, Emre Ulaş
İşveren: Antalya Büyükşehir Belediyesi
Proje Başlangıç Yılı: 2002
Proje Bitiş Yılı: 2002