18/20
Paylaş
Resmi Orjinal Boyutunda Göster
2. Ödül
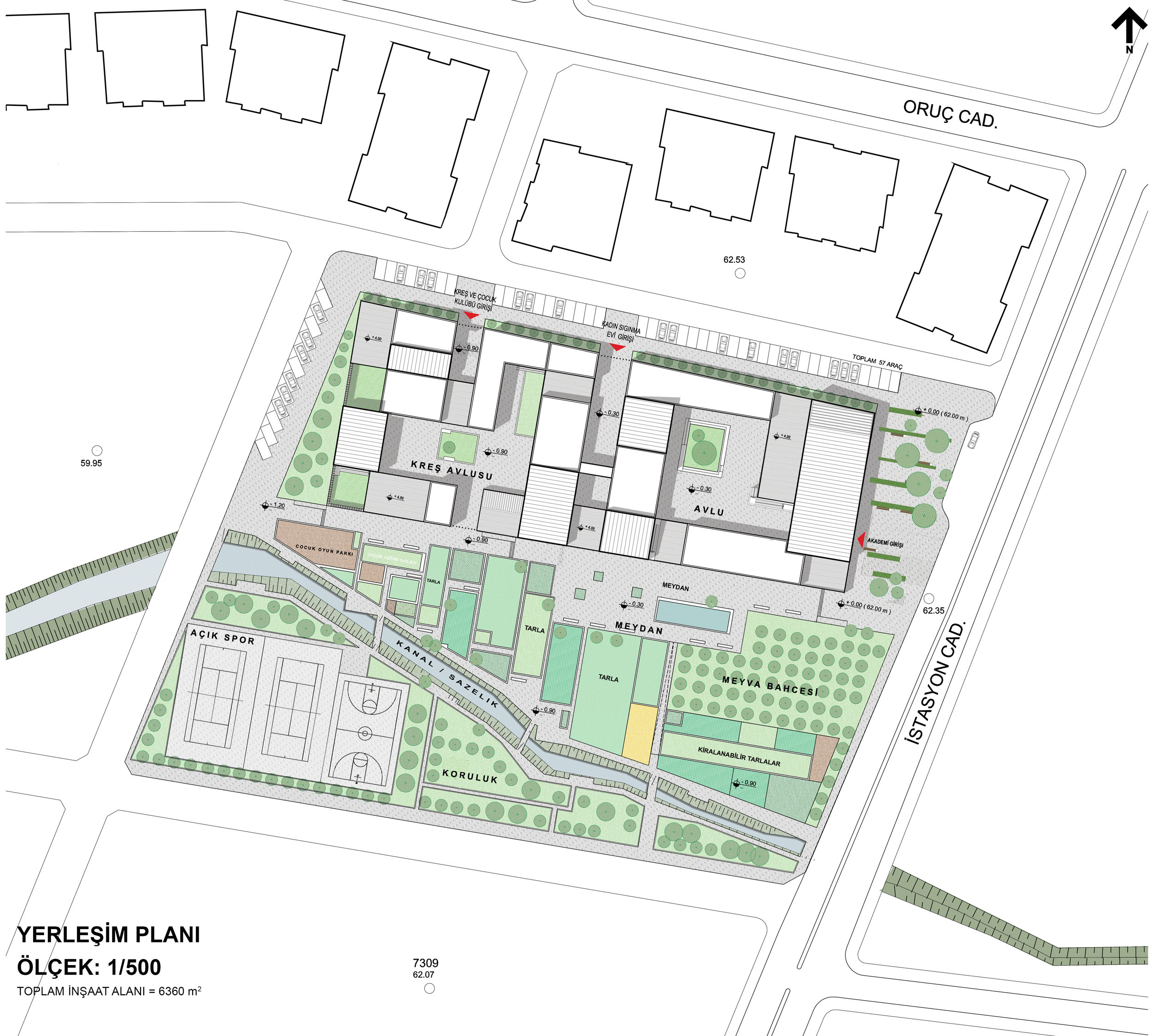
Project Location: Lüleburgaz
Project Type: Social Facility, Preschool / Nursery
Proje Tipi Grubu: 2. Ödül
Tasarım Ekibi: Tülin Hadi, Cem İlhan, Sezin Beldağ, Utku Bilgili, Saruhan Oflaz, Fabio Ribeiro, Sedef Zorbozan
Peyzaj Mimarlığı: Eda Ekim, Ceyda Özbilen
Structural Project: Yusuf Tımbır
Mechanical Project: Murat Aydın
Electrical Project: Dilda Yaman