12/12
Paylaş
Resmi Orjinal Boyutunda Göster
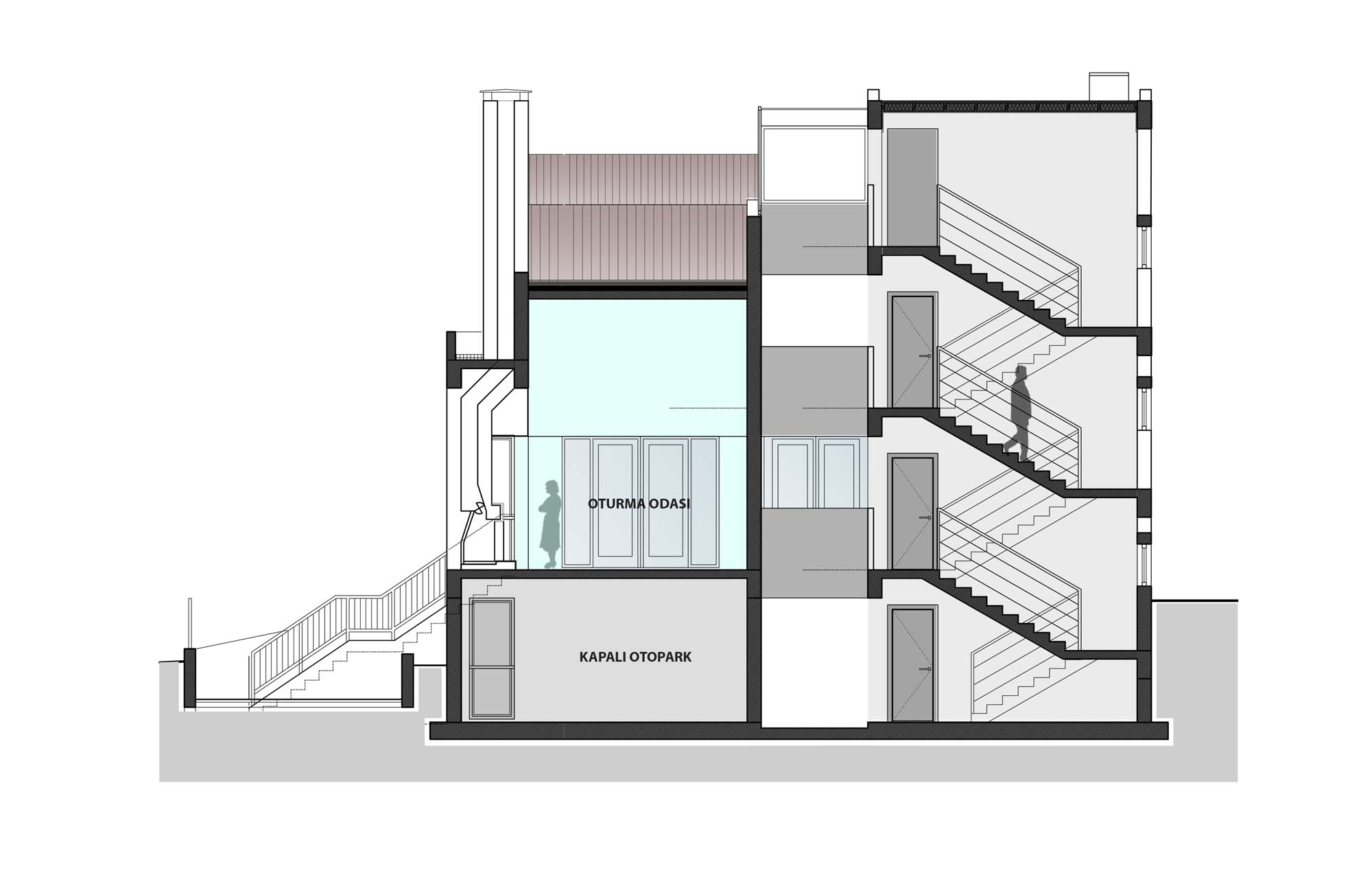
İncek Park Villaları
Proje Yeri: İncek, Ankara
Proje Ofisi: MTK Mimarlık-Danışmanlık
Proje Tipi: Konut Sitesi / Grubu
Proje Tipi Grubu: Konut
Tasarım Ekibi: M.Turhan Kayasü, Mert Kayasü, Sedat Acar
İşveren: Halis Bozdemir, Ahmet Bozkurt
Ana Yüklenici: Halis Bozdemir, M.Turhan Kayasü
Statik Projesi: Yıldırım İnşaat
Mekanik Projesi: Promete Mühendislik, Bilge Mühendislik
Proje Başlangıç Yılı: 2012
Proje Bitiş Yılı: 2012
İnşaat Başlangıç Yılı: 2012
Arsa Alanı: 5;522 m2
Toplam İnşaat Alanı: 3,255 m2