40/56
Paylaş
Resmi Orjinal Boyutunda Göster
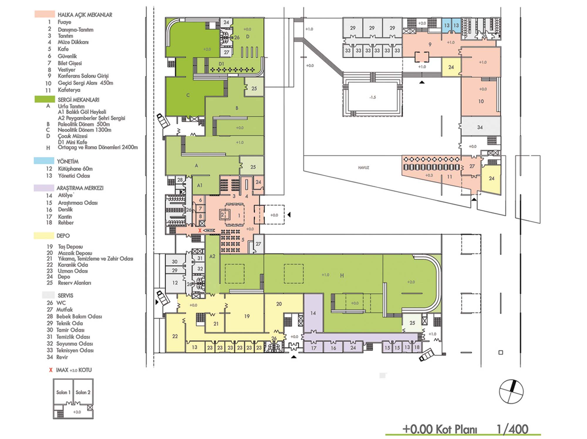
Şanlıurfa Müze Kompleksi Arkeoloji Müzesi
Proje Yeri: Şanlıurfa
Proje Ofisi: Okyanus Mühendislik ve İnşaat, MS Başkent Mimarlık, UED Mimarlık
Proje Tipi: Müze
Proje Tipi Grubu: Kültür
Tasarım Ekibi: Nuran Demirtaş, Mete Sezer, Uğur Emre Demirci
İşveren: Kültür Bakanlığı
Konsept Tasarımı: MS Başkent Mimarlık
Uygulama Projesi: UED Mimarlık
Cephe Tasarımı: Efekta Mimarlık
Statik Projesi: Mustafa Demirci
Mekanik Projesi: Seyit Kaplan
Elektrik Projesi: Eren Kahraman
Proje Başlangıç Yılı: 2011
Proje Bitiş Yılı: 2011
İnşaat Başlangıç Yılı: 2012
İnşaat Bitiş Yılı: 2015
Arsa Alanı: 200,000 m²