9/30
Paylaş
Resmi Orjinal Boyutunda Göster
Eşdeğer Mansiyon (Atelye 70)
Project Location: İstanbul, Gülsuyu Mahallesi, Maltepe
Project Office: Atelye70 Planners and Architects
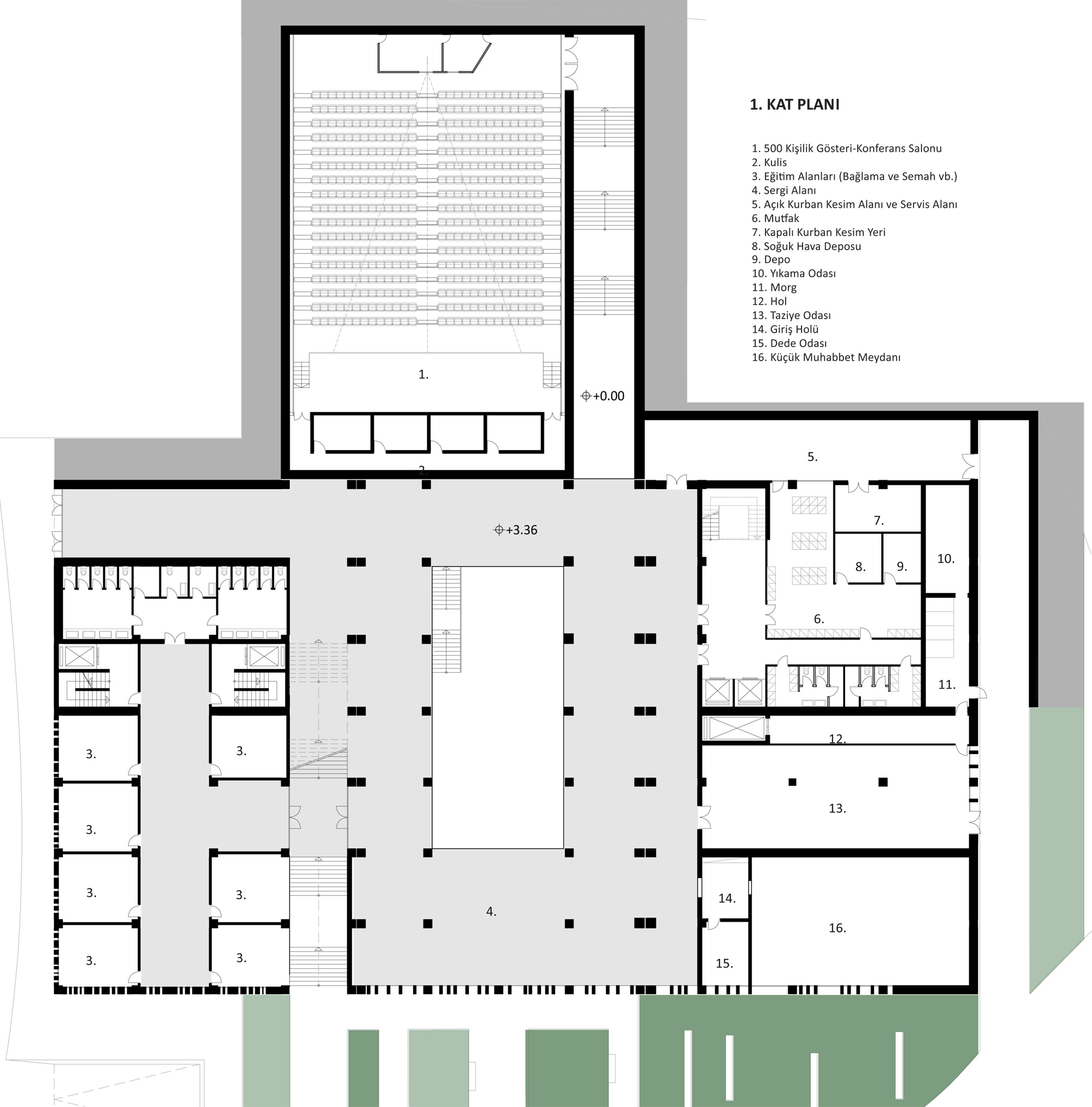
Project Type: Cem House, Cultural Center
Proje Tipi Grubu: Eşdeğer Mansiyon
Tasarım Ekibi: Doğu Kaptan, Murat Er
Consultant: Yusuf Özkan, Mario Seccia, Deniz Çalışkan, Cemal Dindar, Hüseyin Durak, Günseli Kato, Hüseyin Kaptan, Fatma Tülin Kaptan, Marco Lombardini, Tuna Orhan, Yonca Temizkan, Valentina Valeri, Mansur Yalçın
Yardımcı: Marco Biozzi, Francesco Stefanini, Fatma Gençdoğuş, Anne-Lise Roussat-Noyerie, Oya Tabanoğlu, Enza di Pinto, Erkan Göray, Ediz Akyalçın, Hüseyin Polat
Project Start Date: 2015
Project End Date: 2015