15/19
Paylaş
Resmi Orjinal Boyutunda Göster
Eşdeğer Mansiyon
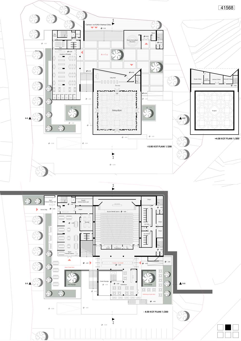
Project Location: İstanbul, Maltepe, Gülsuyu Mahallesi
Project Office: İki Artı Bir Mimarlık
Project Type: Cem House, Cultural Center
Proje Tipi Grubu: Eşdeğer Mansiyon
Tasarım Ekibi: Deniz Dokgöz, Ferhat Hacıalibeyoğlu, Orhan Ersan
Consultant: Cemal Coşak, Uğur Altuğ, Seçkin Sekman, Volkan Barboros
Yardımcı: Gülcan Afacan, İbrahim Yiğiter, Başak Elbaş, Sümeyra Erkmen